Woning Reide 14 Scheemda

Reide 14, 9679DB Scheemda

Ontvang updates voor Scheemda

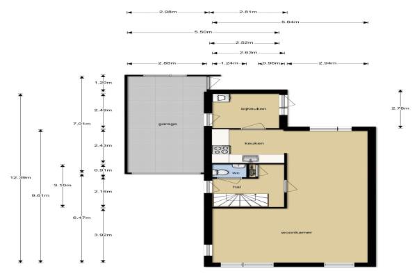
Het adres van deze woning uit 1991 is Reide 14 te Scheemda. Het pand heeft een oppervlakte van 107m² en een perceeloppervlakte van 365m² en heeft 5 kamers kamers waarvan 3 slaapkamers. De geschatte waarde van deze woning is € 170.000.

Bekijk alle woningen in Scheemda

Gegevens van Eengezinswoning, 2-onder-1-kapwoning

Bouwjaar
1991
Geschatte waarde
€ 170.000
Oppervlakte
107 m2
Inhoud
487 m3
Aantal kamers
5 kamers
Slaapkamers
3
Badkamers
1 badkamer en 1 apart toilet
Soort bouw
Bestaande bouw
Eigendomssituatie
Volle eigendom
Ligging
Aan rustige weg en in woonwijk
Tuin
Achtertuin, voortuin en zijtuin
Achtertuin
106 m² (9m diep en 16m breed)

Voorzieningen in de buurt

Boodschappen0,6 km
Grote supermarkt0,5 km
Cafetaria0,5 km
Restaurant0,5 km
Huisarts0,7 km
Ziekenhuis1,5 km
Kinderdagverblijf0,7 km
BSO0,5 km
Alle voorzieningen in Scheemda

Binnenkijken bij Reide 14 te Scheemda

Meer meldingen in deze omgeving

112 melding
Zaterdag 29-11-2025 om 09:37
Donellenlaan, Scheemda

Binnenkijken bij
Zaterdag 29-11-2025
Dollardlaan 30, 9679CB Scheemda

112 melding
Vrijdag 28-11-2025 om 16:45
Oude Rijksweg, 9679AX Scheemda

Binnenkijken bij
Vrijdag 28-11-2025
Waterlelie 10, 9679MD Scheemda

Nieuw bedrijf
November 2025
Stationsstraat 13, 9679EA Scheemda

Nieuw bedrijf
November 2025
Brugstraat 2, 9679BR Scheemda

Binnenlands nieuws
Zaterdag 22-11-2025
Scheemda

Binnenlands nieuws
Zaterdag 22-11-2025
Scheemda

Direct een e-mail ontvangen bij nieuwe meldingen in deze regio?

Meld je dan GRATIS aan voor de Oozo Alert service voor Scheemda

Instellen

Meer nieuws in Scheemda

Weten hoe eenvoudig het is om af te vallen? Zonder pillen en smeersels en zonder je in het zweet te werken!
Kijk op eenvoudig-afvallen.nl

© 2012 - 2025 OOZO.nl - info@oozo.nl - Gegevens verwijderen? | Disclaimer | Privacy statement