Woning Misthoorn 37 Blauwestad

Misthoorn 37, 9685CB Blauwestad

Ontvang updates voor Verspreide huizen Winschoten

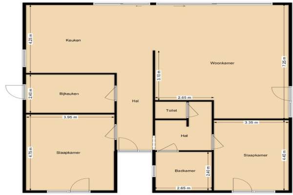
Het adres van deze woning uit 2024 is Misthoorn 37 te Blauwestad. Het pand heeft een oppervlakte van 140m² en een perceeloppervlakte van 607m² en heeft 3 kamers kamers waarvan 2 slaapkamers. De geschatte waarde van deze woning is € 749.000.

Bekijk alle woningen in Verspreide huizen Winschoten

Gegevens van Eengezinswoning, vrijstaande woning

Bouwjaar
2024
Geschatte waarde
€ 749.000
Oppervlakte
140 m2
Inhoud
495 m3
Aantal kamers
3 kamers
Slaapkamers
2
Badkamers
1 badkamer en 1 apart toilet
Soort bouw
Bestaande bouw
Eigendomssituatie
Volle eigendom
Ligging
Aan vaarwater en aan water
Tuin
Tuin rondom

Voorzieningen in de buurt

Boodschappen3,2 km
Grote supermarkt3,3 km
Cafetaria3,3 km
Restaurant3,4 km
Huisarts3,2 km
Ziekenhuis9,2 km
Kinderdagverblijf3,1 km
BSO3,0 km
Alle voorzieningen in Verspreide huizen Winschoten

Binnenkijken bij Misthoorn 37 te Blauwestad

Meer meldingen in deze omgeving

112 melding
Vrijdag 15-5-2026 om 14:59
Cantharel, Blauwestad

112 melding
Donderdag 14-5-2026 om 10:18
Noordereinde, 9675TT Winschoten

Onroerend goed
Woensdag 13-5-2026
Redersplein 1, 9685AW Blauwestad

112 melding
Maandag 11-5-2026 om 16:31
Noordereinde, 9675TT Winschoten

Binnenkijken bij
Zondag 10-5-2026
Dwinger 6, 9685AP Blauwestad

Binnenkijken bij
Dinsdag 5-5-2026
Dwinger 12, 9685AP Blauwestad

Onroerend goed
Zaterdag 25-4-2026
Zuiderveen, 9674TA Winschoten

Binnenkijken bij
Maandag 13-4-2026
Misthoorn 45, 9685CB Blauwestad

Direct een e-mail ontvangen bij nieuwe meldingen in deze regio?

Meld je dan GRATIS aan voor de Oozo Alert service voor Verspreide huizen Winschoten

Instellen

Meer nieuws in Verspreide huizen Winschoten

Weten hoe eenvoudig het is om af te vallen? Zonder pillen en smeersels en zonder je in het zweet te werken!
Kijk op eenvoudig-afvallen.nl

© 2012 - 2026 OOZO.nl - info@oozo.nl - Gegevens verwijderen? | Disclaimer | Privacy statement