Woning Nieuwlandsweg 17 Wezep

Nieuwlandsweg 17, 8091HK Wezep

Ontvang updates voor Wezep-Oost

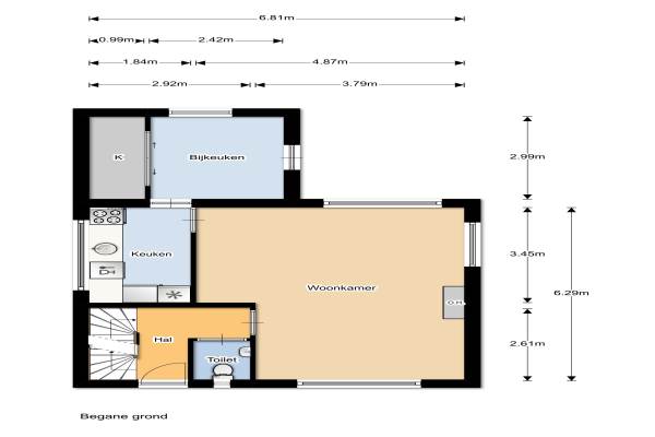
Het adres van deze woning uit 1964 is Nieuwlandsweg 17 te Wezep. Het pand heeft een oppervlakte van 97m² en een perceeloppervlakte van 500m² en heeft 5 kamers kamers waarvan 3 slaapkamers. De geschatte waarde van deze woning is € 329.000.

Bekijk alle woningen in Wezep-Oost

Gegevens van Eengezinswoning, vrijstaande woning

Bouwjaar
1964
Geschatte waarde
€ 329.000
Oppervlakte
97 m2
Inhoud
534 m3
Aantal kamers
5 kamers
Slaapkamers
3
Badkamers
1 badkamer en 1 apart toilet
Soort bouw
Bestaande bouw
Eigendomssituatie
Volle eigendom
Ligging
Aan rustige weg en in woonwijk
Tuin
Tuin rondom

Voorzieningen in de buurt

Boodschappen0,6 km
Grote supermarkt0,7 km
Cafetaria0,6 km
Restaurant0,9 km
Huisarts0,5 km
Ziekenhuis9,8 km
Kinderdagverblijf0,4 km
BSO0,4 km
Alle voorzieningen in Wezep-Oost

Binnenkijken bij Nieuwlandsweg 17 te Wezep

Meer meldingen in deze omgeving

112 melding
Dinsdag 16-12-2025 om 07:58
Wildekampsweg, Wezep

Nieuw bedrijf
December 2025
Houthakkersweg 19, 8091DC Wezep

Nieuw bedrijf
December 2025
Nieuwlandsweg 69, 8091HL Wezep

Nieuw bedrijf
December 2025
Zuiderzeestraatweg 576, 8091CW Wezep

Binnenkijken bij
Donderdag 4-12-2025
Scheerderslaan 16, 8091HD Wezep

Nieuw bedrijf
December 2025
Houthakkersweg 78, 8091DB Wezep

Binnenkijken bij
Dinsdag 2-12-2025
Houthakkersweg 3, 8091DC Wezep

Binnenkijken bij
Dinsdag 2-12-2025
Ruitersveldweg 9, 8091HR Wezep

Direct een e-mail ontvangen bij nieuwe meldingen in deze regio?

Meld je dan GRATIS aan voor de Oozo Alert service voor Wezep-Oost

Instellen

Meer nieuws in Wezep-Oost

Weten hoe eenvoudig het is om af te vallen? Zonder pillen en smeersels en zonder je in het zweet te werken!
Kijk op eenvoudig-afvallen.nl

© 2012 - 2025 OOZO.nl - info@oozo.nl - Gegevens verwijderen? | Disclaimer | Privacy statement