Woning Monnikstraat 40 Oldenzaal

Monnikstraat 40, 7571CW Oldenzaal

Ontvang updates voor Binnenstad

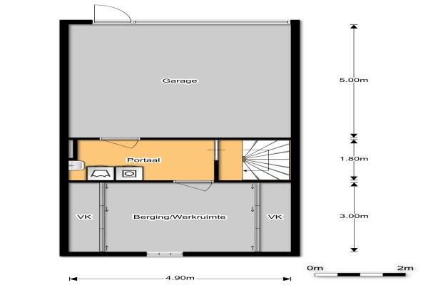
Het adres van deze woning uit 1974 is Monnikstraat 40 te Oldenzaal. Het pand heeft een oppervlakte van 110m² en een perceeloppervlakte van 90m² en heeft 8 kamers kamers waarvan 4 slaapkamers. De geschatte waarde van deze woning is € 269.000.

Bekijk alle woningen in Binnenstad

Gegevens van Eengezinswoning, eindwoning

Bouwjaar
1974
Geschatte waarde
€ 269.000
Oppervlakte
110 m2
Inhoud
490 m3
Aantal kamers
8 kamers
Slaapkamers
4
Badkamers
1 apart toilet
Soort bouw
Bestaande bouw
Eigendomssituatie
Volle eigendom

Voorzieningen in de buurt

Boodschappen0,2 km
Grote supermarkt0,3 km
Cafetaria0,2 km
Restaurant0,2 km
Huisarts0,4 km
Ziekenhuis0,8 km
Kinderdagverblijf0,3 km
BSO0,3 km
Alle voorzieningen in Binnenstad

Binnenkijken bij Monnikstraat 40 te Oldenzaal

Meer meldingen in deze omgeving

Faillissement
Donderdag 9-10-2025
Marktstraat 1, 7571ED Oldenzaal

Faillissement
Donderdag 9-10-2025
Marktstraat 1, 7571ED Oldenzaal

Faillissement
Donderdag 9-10-2025
Marktstraat 1, 7571ED Oldenzaal

Faillissement
Donderdag 9-10-2025
Marktstraat 1, 7571ED Oldenzaal

Faillissement
Donderdag 9-10-2025
Marktstraat 1, 7571ED Oldenzaal

Binnenkijken bij
Donderdag 9-10-2025
Bisschopstraat 37B, 7571CX Oldenzaal

Binnenkijken bij
Donderdag 9-10-2025
Oostwal 5, 7571CR Oldenzaal

Nieuw bedrijf
Oktober 2025
St. Plechelmusplein 9k, 7571EG Oldenzaal

Direct een e-mail ontvangen bij nieuwe meldingen in deze regio?

Meld je dan GRATIS aan voor de Oozo Alert service voor Binnenstad

Instellen

Meer nieuws in Binnenstad

Weten hoe eenvoudig het is om af te vallen? Zonder pillen en smeersels en zonder je in het zweet te werken!
Kijk op eenvoudig-afvallen.nl

© 2012 - 2025 OOZO.nl - info@oozo.nl - Gegevens verwijderen? | Disclaimer | Privacy statement