Woning Mariastraat 18 Oldenzaal

Mariastraat 18, 7574ZM Oldenzaal

Ontvang updates voor Zuid-Berghuizen

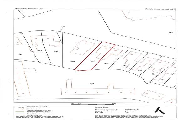
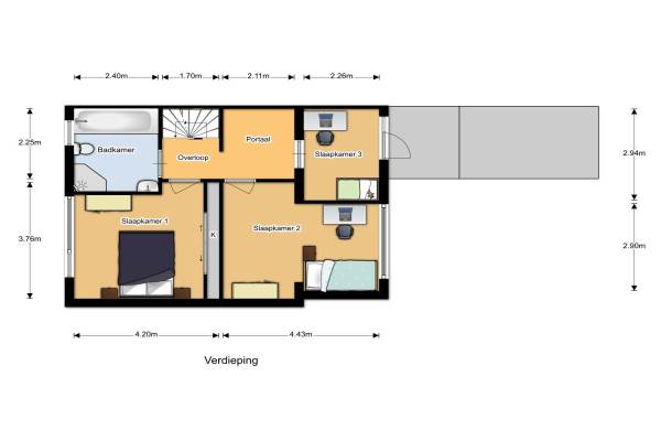
Het adres van deze woning uit 1955 is Mariastraat 18 te Oldenzaal. Het pand heeft een oppervlakte van 128m² en een perceeloppervlakte van 325m² en heeft 5 kamers kamers waarvan 4 slaapkamers. De geschatte waarde van deze woning is € 249.000.

Bekijk alle woningen in Zuid-Berghuizen

Gegevens van Eengezinswoning, 2-onder-1-kapwoning

Bouwjaar
1955
Geschatte waarde
€ 249.000
Oppervlakte
128 m2
Inhoud
415 m3
Aantal kamers
5 kamers
Slaapkamers
4
Badkamers
1 badkamer en 1 apart toilet
Soort bouw
Bestaande bouw
Eigendomssituatie
Volle eigendom
Ligging
In woonwijk
Tuin
Achtertuin en voortuin
Achtertuin
160 m² (20m diep en 8m breed)

Voorzieningen in de buurt

Boodschappen0,5 km
Grote supermarkt0,6 km
Cafetaria0,5 km
Restaurant0,6 km
Huisarts0,5 km
Ziekenhuis1,2 km
Kinderdagverblijf0,6 km
BSO0,4 km
Alle voorzieningen in Zuid-Berghuizen

Binnenkijken bij Mariastraat 18 te Oldenzaal

Meer meldingen in deze omgeving

Binnenkijken bij
Woensdag 26-11-2025
Burgemeester Eekhoutstraat 20, 7574ZB Oldenzaal

Nieuw bedrijf
November 2025
P.J. Geldermanstraat 17, 7574ZV Oldenzaal

Nieuw bedrijf
November 2025
P.J. Geldermanstraat 76, 7574ZR Oldenzaal

Nieuw bedrijf
November 2025
Burgemeester Wallerstraat 109, 7574AL Oldenzaal

Binnenkijken bij
Dinsdag 11-11-2025
Oude Lossersestraat 142, 7574DD Oldenzaal

Binnenkijken bij
Dinsdag 11-11-2025
J.H. Nieuwenhuisstraat 53, 7574ZG Oldenzaal

Nieuw bedrijf
Oktober 2025
Lossersestraat 2, 7574AE Oldenzaal

Binnenkijken bij
Zondag 19-10-2025
Oude Lossersestraat 39, 7574DE Oldenzaal

Direct een e-mail ontvangen bij nieuwe meldingen in deze regio?

Meld je dan GRATIS aan voor de Oozo Alert service voor Zuid-Berghuizen

Instellen

Meer nieuws in Zuid-Berghuizen

Weten hoe eenvoudig het is om af te vallen? Zonder pillen en smeersels en zonder je in het zweet te werken!
Kijk op eenvoudig-afvallen.nl

© 2012 - 2025 OOZO.nl - info@oozo.nl - Gegevens verwijderen? | Disclaimer | Privacy statement