Woning Anton Mollemanhof 25 Zieuwent

Anton Mollemanhof 25, 7136MR Zieuwent

Ontvang updates voor Bebouwde kom Zieuwent

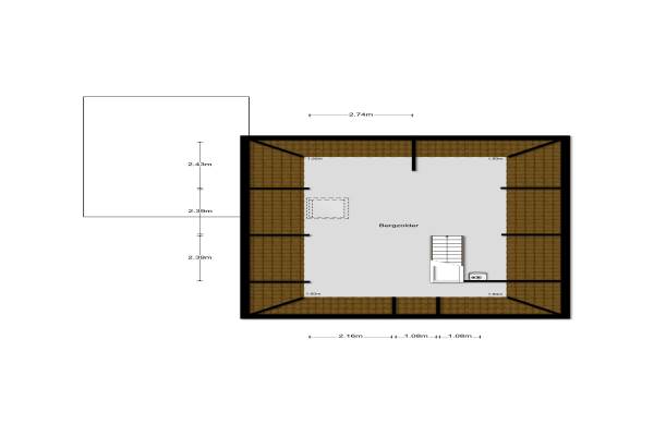
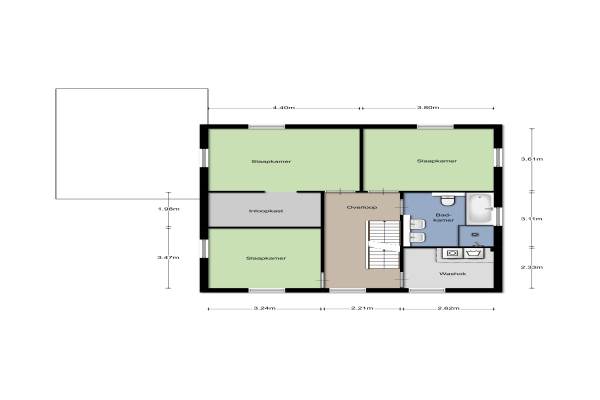
Het adres van deze woning uit 2003 is Anton Mollemanhof 25 te Zieuwent. Het pand heeft een oppervlakte van 198m² en een perceeloppervlakte van 570m² en heeft 9 kamers kamers waarvan 3 slaapkamers. De geschatte waarde van deze woning is € 485.000.

Bekijk alle woningen in Bebouwde kom Zieuwent

Gegevens van Eengezinswoning, vrijstaande woning

Bouwjaar
2003
Geschatte waarde
€ 485.000
Oppervlakte
198 m2
Inhoud
734 m3
Aantal kamers
9 kamers
Slaapkamers
3
Badkamers
1 badkamer en 1 apart toilet
Soort bouw
Bestaande bouw
Eigendomssituatie
Volle eigendom
Ligging
Aan rustige weg en in woonwijk
Tuin
Tuin rondom

Voorzieningen in de buurt

Boodschappen0,4 km
Grote supermarkt0,4 km
Cafetaria3,8 km
Restaurant0,4 km
Huisarts0,4 km
Ziekenhuis15,4 km
Kinderdagverblijf0,4 km
BSO0,6 km
Alle voorzieningen in Bebouwde kom Zieuwent

Binnenkijken bij Anton Mollemanhof 25 te Zieuwent

Meer meldingen in deze omgeving

Faillissement
Dinsdag 24-3-2026
Dorpsstraat 13, 7136LE Zieuwent

Binnenkijken bij
Zaterdag 28-2-2026
Pastoor Zanderinkstraat 2A, 7136LR Zieuwent

Binnenkijken bij
Zondag 25-1-2026
Pastoor Zanderinkstraat 34, 7136LR Zieuwent

Nieuw bedrijf
Januari 2026
Zegendijk 3a, 7136LS ZIEUWENT

Nieuw bedrijf
Januari 2026
Kennedystraat 9, 7136LX Zieuwent

Nieuw bedrijf
December 2025
Dorpsstraat 49, 7136LG ZIEUWENT

Nieuw bedrijf
December 2025
Dorpsstraat 37, 7136LE ZIEUWENT

Binnenkijken bij
Zaterdag 20-12-2025
Werenfriedstraat 31, 7136LZ Zieuwent

Direct een e-mail ontvangen bij nieuwe meldingen in deze regio?

Meld je dan GRATIS aan voor de Oozo Alert service voor Bebouwde kom Zieuwent

Instellen

Meer nieuws in Bebouwde kom Zieuwent

Weten hoe eenvoudig het is om af te vallen? Zonder pillen en smeersels en zonder je in het zweet te werken!
Kijk op eenvoudig-afvallen.nl

© 2012 - 2026 OOZO.nl - info@oozo.nl - Gegevens verwijderen? | Disclaimer | Privacy statement