Woning Harmoniestraat 4 Oosterhout Nb

Harmoniestraat 4, 4902PZ Oosterhout Nb

Ontvang updates voor Slotjes-Midden

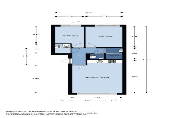
Het adres van deze woning uit 2015 is Harmoniestraat 4 te Oosterhout Nb. Het pand heeft een oppervlakte van 58m² en heeft 3 kamers kamers waarvan 2 slaapkamers. De geschatte waarde van deze woning is € 165.000.

Bekijk alle woningen in Slotjes-Midden

Gegevens van Benedenwoning (appartement)

Bouwjaar
2015
Geschatte waarde
€ 165.000
Oppervlakte
58 m2
Inhoud
226 m3
Aantal kamers
3 kamers
Slaapkamers
2
Badkamers
1 badkamer en 1 apart toilet
Soort bouw
Bestaande bouw
Eigendomssituatie
Volle eigendom
Ligging
Aan rustige weg en in woonwijk
Tuin
Achtertuin
Achtertuin
34 m² (5,7m diep en 6m breed)

Voorzieningen in de buurt

Boodschappen0,4 km
Grote supermarkt0,7 km
Cafetaria0,3 km
Restaurant0,4 km
Huisarts0,4 km
Ziekenhuis1,8 km
Kinderdagverblijf0,6 km
BSO0,6 km
Alle voorzieningen in Slotjes-Midden

Binnenkijken bij Harmoniestraat 4 te Oosterhout Nb

Meer meldingen in deze omgeving

Binnenkijken bij
Vrijdag 12-12-2025
Bijsterveld 83, 4902ZN Oosterhout (NB)

Binnenkijken bij
Zaterdag 6-12-2025
Bijsterveld 15, 4902ZN Oosterhout (NB)

112 melding
Dinsdag 2-12-2025 om 09:07
Wilhelminakanaal Noord, 4909 Oosterhout

Binnenkijken bij
Dinsdag 2-12-2025
Bijsterveld 9, 4902ZN Oosterhout (NB)

Binnenkijken bij
Vrijdag 28-11-2025
Schaepmanlaan 8, 4902TH Oosterhout (NB)

Nieuw bedrijf
November 2025
Mgr. Frenckenstraat 20, 4902TB Oosterhout

Nieuw bedrijf
November 2025
Loevensteinlaan 50, 4902WV Oosterhout

Nieuw bedrijf
November 2025
Apollostraat 6, 4902PW Oosterhout

Direct een e-mail ontvangen bij nieuwe meldingen in deze regio?

Meld je dan GRATIS aan voor de Oozo Alert service voor Slotjes-Midden

Instellen

Meer nieuws in Slotjes-Midden

Weten hoe eenvoudig het is om af te vallen? Zonder pillen en smeersels en zonder je in het zweet te werken!
Kijk op eenvoudig-afvallen.nl

© 2012 - 2025 OOZO.nl - info@oozo.nl - Gegevens verwijderen? | Disclaimer | Privacy statement