Woning Tilburgseweg 5 Oosterhout Nb

Tilburgseweg 5, 4902TL Oosterhout Nb

Ontvang updates voor Slotjes-Oost

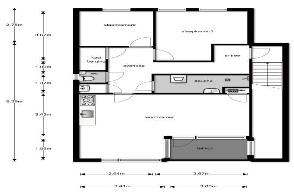
Het adres van deze woning uit 2017 is Tilburgseweg 5 te Oosterhout Nb. Het pand heeft een oppervlakte van 77m² en heeft 3 kamers kamers waarvan 2 slaapkamers. De geschatte waarde van deze woning is € 195.000.

Bekijk alle woningen in Slotjes-Oost

Gegevens van Portiekwoning (appartement)

Bouwjaar
2017
Geschatte waarde
€ 195.000
Oppervlakte
77 m2
Inhoud
230 m3
Aantal kamers
3 kamers
Slaapkamers
2
Badkamers
1 badkamer en 1 apart toilet
Soort bouw
Bestaande bouw
Ligging
Aan drukke weg

Voorzieningen in de buurt

Boodschappen0,4 km
Grote supermarkt0,4 km
Cafetaria0,3 km
Restaurant0,4 km
Huisarts0,7 km
Ziekenhuis1,5 km
Kinderdagverblijf1,0 km
BSO1,0 km
Alle voorzieningen in Slotjes-Oost

Binnenkijken bij Tilburgseweg 5 te Oosterhout Nb

Meer meldingen in deze omgeving

Nieuw bedrijf
December 2025
Kastanjelaan 88, 4902RN Oosterhout

Nieuw bedrijf
December 2025
Sint Antoniusstraat 21, 4902PT Oosterhout

Nieuw bedrijf
December 2025
Sint Antoniusstraat 21, 4902PT Oosterhout

Nieuw bedrijf
December 2025
Monnikendreef 6, 4902RT Oosterhout

Binnenkijken bij
Dinsdag 2-12-2025
Kastanjelaan 78, 4902RN Oosterhout (NB)

Nieuw bedrijf
November 2025
Kastanjelaan 53, 4902RJ Oosterhout

112 melding
Zondag 23-11-2025 om 10:31
Sint Antoniushof, 4902RZ Oosterhout

Binnenkijken bij
Woensdag 19-11-2025
Eikenlaan 125, 4902RC Oosterhout (NB)

Direct een e-mail ontvangen bij nieuwe meldingen in deze regio?

Meld je dan GRATIS aan voor de Oozo Alert service voor Slotjes-Oost

Instellen

Meer nieuws in Slotjes-Oost

Weten hoe eenvoudig het is om af te vallen? Zonder pillen en smeersels en zonder je in het zweet te werken!
Kijk op eenvoudig-afvallen.nl

© 2012 - 2025 OOZO.nl - info@oozo.nl - Gegevens verwijderen? | Disclaimer | Privacy statement