Woning Hertogenlaan 248 Oosterhout Nb

Hertogenlaan 248, 4902AW Oosterhout Nb

Ontvang updates voor Slotjes-West

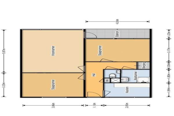
Het adres van deze woning uit 1964 is Hertogenlaan 248 te Oosterhout Nb. Het pand heeft een oppervlakte van 75m² en heeft 3 kamers kamers waarvan 2 slaapkamers. De geschatte waarde van deze woning is € 165.500.

Bekijk alle woningen in Slotjes-West

Gegevens van Galerijflat (appartement)

Bouwjaar
1964
Geschatte waarde
€ 165.500
Oppervlakte
75 m2
Inhoud
210 m3
Aantal kamers
3 kamers
Slaapkamers
2
Badkamers
1 badkamer en 1 apart toilet
Soort bouw
Bestaande bouw
Eigendomssituatie
Volle eigendom
Ligging
Aan park, in woonwijk en vrij uitzicht

Voorzieningen in de buurt

Boodschappen0,7 km
Grote supermarkt0,7 km
Cafetaria0,5 km
Restaurant0,7 km
Huisarts0,3 km
Ziekenhuis2,1 km
Kinderdagverblijf0,5 km
BSO1,0 km
Alle voorzieningen in Slotjes-West

Binnenkijken bij Hertogenlaan 248 te Oosterhout Nb

Meer meldingen in deze omgeving

Binnenkijken bij
Dinsdag 5-5-2026
Hertogenlaan 160, 4902AV Oosterhout (NB)

Binnenkijken bij
Dinsdag 5-5-2026
Slotlaan 34, 4902AE Oosterhout (NB)

Binnenkijken bij
Dinsdag 5-5-2026
Hertogenlaan 244, 4902AW Oosterhout (NB)

Binnenkijken bij
Dinsdag 5-5-2026
Heer Arnoudstraat 9, 4902BR Oosterhout (NB)

Binnenkijken bij
Dinsdag 5-5-2026
Hertogenlaan 126, 4902AT Oosterhout (NB)

Binnenkijken bij
Dinsdag 5-5-2026
Ridderstraat 80, 4902AC Oosterhout (NB)

Binnenkijken bij
Maandag 13-4-2026
Hertogenlaan 110, 4902AT Oosterhout (NB)

Binnenkijken bij
Vrijdag 10-4-2026
Hertogenlaan 268, 4902AW Oosterhout (NB)

Direct een e-mail ontvangen bij nieuwe meldingen in deze regio?

Meld je dan GRATIS aan voor de Oozo Alert service voor Slotjes-West

Instellen

Meer nieuws in Slotjes-West

Weten hoe eenvoudig het is om af te vallen? Zonder pillen en smeersels en zonder je in het zweet te werken!
Kijk op eenvoudig-afvallen.nl

© 2012 - 2026 OOZO.nl - info@oozo.nl - Gegevens verwijderen? | Disclaimer | Privacy statement