Woning Stuifduin 10 Oosterhout NB

Stuifduin 10, 4906ME Oosterhout NB

Ontvang updates voor Vrachelen-Noord

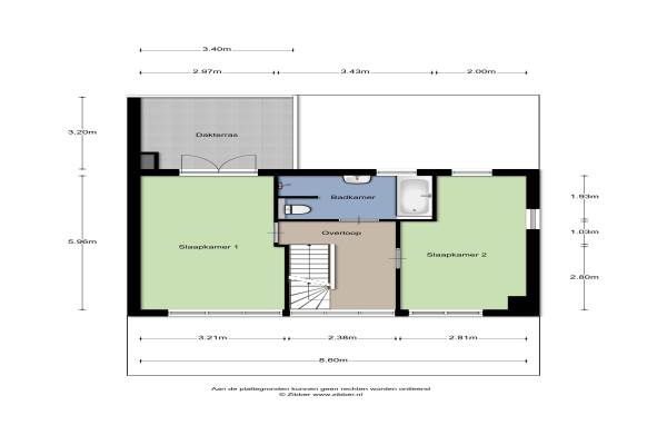
Het adres van deze woning uit 2018 is Stuifduin 10 te Oosterhout NB. Het pand heeft 5 kamers kamers waarvan 4 slaapkamers. De geschatte waarde van deze woning is € 469.500.

Bekijk alle woningen in Vrachelen-Noord

Gegevens van Eengezinswoning, geschakelde woning

Bouwjaar
2018
Geschatte waarde
€ 469.500
Oppervlakte
0 m2
Inhoud
678 m3
Aantal kamers
5 kamers
Slaapkamers
4
Badkamers
1 badkamer en 1 apart toilet
Soort bouw
Bestaande bouw
Eigendomssituatie
Volle eigendom
Ligging
In woonwijk en in bosrijke omgeving
Tuin
Achtertuin en voortuin
Achtertuin
90 m² (10m diep en 9m breed)

Voorzieningen in de buurt

Boodschappen1,0 km
Grote supermarkt1,0 km
Cafetaria1,0 km
Restaurant1,9 km
Huisarts0,4 km
Ziekenhuis3,3 km
Kinderdagverblijf0,4 km
BSO0,4 km
Alle voorzieningen in Vrachelen-Noord

Binnenkijken bij Stuifduin 10 te Oosterhout NB

Meer meldingen in deze omgeving

Binnenkijken bij
Vrijdag 30-1-2026
Merijntje Gijzenstraat 37, 4906EB Oosterhout (NB)

112 melding
Maandag 26-1-2026 om 15:54
De Waard, 4906BC Oosterhout

112 melding
Maandag 26-1-2026 om 15:52
De Waard, 4906BC Oosterhout

Binnenkijken bij
Woensdag 21-1-2026
Heer Halewijnstraat 11, 4906ED Oosterhout (NB)

Binnenkijken bij
Dinsdag 13-1-2026
Victor Slingelandstraat 24, 4906EL Oosterhout (NB)

112 melding
Vrijdag 9-1-2026 om 08:30
Pallieterplein, Oosterhout

Binnenkijken bij
Vrijdag 9-1-2026
Pieter Stastokstraat 163, 4906GC Oosterhout (NB)

Binnenkijken bij
Vrijdag 9-1-2026
Pieter Stastokstraat 167, 4906GC Oosterhout (NB)

Direct een e-mail ontvangen bij nieuwe meldingen in deze regio?

Meld je dan GRATIS aan voor de Oozo Alert service voor Vrachelen-Noord

Instellen

Meer nieuws in Vrachelen-Noord

Weten hoe eenvoudig het is om af te vallen? Zonder pillen en smeersels en zonder je in het zweet te werken!
Kijk op eenvoudig-afvallen.nl

© 2012 - 2026 OOZO.nl - info@oozo.nl - Gegevens verwijderen? | Disclaimer | Privacy statement