Woning Slijpsteen 3 Oosterhout Nb

Slijpsteen 3, 4906LP Oosterhout Nb

Ontvang updates voor Vrachelen-Noordwest

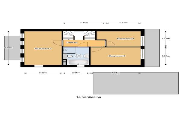
Het adres van deze woning uit 2014 is Slijpsteen 3 te Oosterhout Nb. Het pand heeft een oppervlakte van 145m² en een perceeloppervlakte van 261m² en heeft 5 kamers kamers waarvan 4 slaapkamers. De geschatte waarde van deze woning is € 449.000.

Bekijk alle woningen in Vrachelen-Noordwest

Gegevens van Eengezinswoning, 2-onder-1-kapwoning

Bouwjaar
2014
Geschatte waarde
€ 449.000
Oppervlakte
145 m2
Inhoud
490 m3
Aantal kamers
5 kamers
Slaapkamers
4
Badkamers
1 badkamer en 1 apart toilet
Soort bouw
Bestaande bouw
Eigendomssituatie
Volle eigendom
Ligging
In woonwijk
Tuin
Achtertuin, voortuin en zijtuin
Achtertuin
85 m² (8,5m diep en 10m breed)

Voorzieningen in de buurt

Boodschappen0,6 km
Grote supermarkt1,0 km
Cafetaria1,0 km
Restaurant1,8 km
Huisarts0,9 km
Ziekenhuis4,0 km
Kinderdagverblijf0,8 km
BSO0,8 km
Alle voorzieningen in Vrachelen-Noordwest

Binnenkijken bij Slijpsteen 3 te Oosterhout Nb

Meer meldingen in deze omgeving

Nieuw bedrijf
Oktober 2025
IJzertijd 39, 4906LD Oosterhout

Binnenkijken bij
Woensdag 29-10-2025
IJzertijd 13, 4906LD Oosterhout (NB)

Binnenkijken bij
Vrijdag 17-10-2025
Gebint 95, 4906LT Oosterhout (NB)

Nieuw bedrijf
Oktober 2025
Bronstijd 1, 4906LA Oosterhout

Binnenkijken bij
Zaterdag 27-9-2025
IJzertijd 51, 4906LD Oosterhout (NB)

Binnenkijken bij
Vrijdag 26-9-2025
Lanspunt 16, 4906LB Oosterhout (NB)

Binnenkijken bij
Donderdag 25-9-2025
Gebint 39, 4906LT Oosterhout (NB)

Binnenkijken bij
Vrijdag 19-9-2025
Amfora 8, 4906LX Oosterhout (NB)

Direct een e-mail ontvangen bij nieuwe meldingen in deze regio?

Meld je dan GRATIS aan voor de Oozo Alert service voor Vrachelen-Noordwest

Instellen

Meer nieuws in Vrachelen-Noordwest

Weten hoe eenvoudig het is om af te vallen? Zonder pillen en smeersels en zonder je in het zweet te werken!
Kijk op eenvoudig-afvallen.nl

© 2012 - 2025 OOZO.nl - info@oozo.nl - Gegevens verwijderen? | Disclaimer | Privacy statement