Woning Vlinderlaan 58 Oosterhout Nb

Vlinderlaan 58, 4904ZL Oosterhout Nb

Ontvang updates voor Vrachelen-Zuidwest

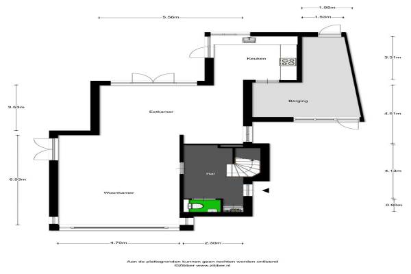
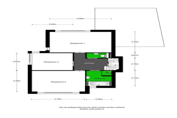
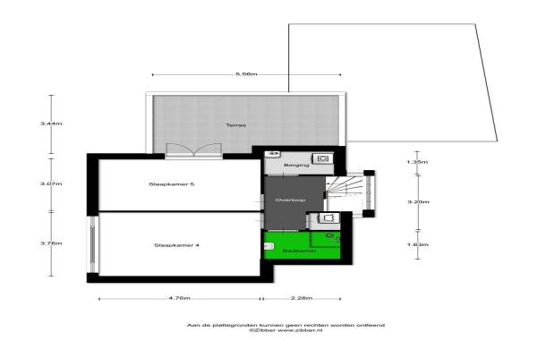
Het adres van deze woning uit 2006 is Vlinderlaan 58 te Oosterhout Nb. Het pand heeft een oppervlakte van 196m² en een perceeloppervlakte van 479m² en heeft 6 kamers kamers waarvan 5 slaapkamers. De geschatte waarde van deze woning is € 615.000.

Bekijk alle woningen in Vrachelen-Zuidwest

Gegevens van Eengezinswoning, vrijstaande woning

Bouwjaar
2006
Geschatte waarde
€ 615.000
Oppervlakte
196 m2
Inhoud
795 m3
Aantal kamers
6 kamers
Slaapkamers
5
Badkamers
2 badkamers en 1 apart toilet
Soort bouw
Bestaande bouw
Eigendomssituatie
Volle eigendom
Ligging
Aan bosrand en in woonwijk
Tuin
Achtertuin, voortuin en zijtuin
Achtertuin
375 m² (15m diep en 25m breed)

Voorzieningen in de buurt

Boodschappen0,7 km
Grote supermarkt0,7 km
Cafetaria0,7 km
Restaurant0,9 km
Huisarts1,6 km
Ziekenhuis3,4 km
Kinderdagverblijf0,6 km
BSO0,6 km
Alle voorzieningen in Vrachelen-Zuidwest

Binnenkijken bij Vlinderlaan 58 te Oosterhout Nb

Meer meldingen in deze omgeving

Nieuw bedrijf
December 2025
Rotsvlinderhof 7, 4904XM Oosterhout

Nieuw bedrijf
December 2025
Rotsvlinderhof 7, 4904XM Oosterhout

Binnenkijken bij
Zaterdag 29-11-2025
Rotsvlinderhof 13, 4904XM Oosterhout (NB)

Binnenkijken bij
Dinsdag 25-11-2025
Parelmoervlinder 67, 4904ZB Oosterhout (NB)

Binnenkijken bij
Vrijdag 21-11-2025
Dagpauwoog 5, 4904ZP Oosterhout (NB)

Binnenkijken bij
Vrijdag 21-11-2025
Markkant 86, 4906KD Oosterhout (NB)

Nieuw bedrijf
November 2025
Parelmoervlinder 13, 4904ZB Oosterhout

112 melding
Donderdag 20-11-2025 om 17:45
Burgemeester Huijbregts-Schiedonlaan, 4906KD Oosterhout

Direct een e-mail ontvangen bij nieuwe meldingen in deze regio?

Meld je dan GRATIS aan voor de Oozo Alert service voor Vrachelen-Zuidwest

Instellen

Meer nieuws in Vrachelen-Zuidwest

Weten hoe eenvoudig het is om af te vallen? Zonder pillen en smeersels en zonder je in het zweet te werken!
Kijk op eenvoudig-afvallen.nl

© 2012 - 2025 OOZO.nl - info@oozo.nl - Gegevens verwijderen? | Disclaimer | Privacy statement