Woning Bovenweg 58 Nijeberkoop

Bovenweg 58, 8422DE Nijeberkoop

Ontvang updates voor Verspreide huizen Nijeberkoop

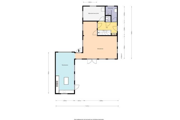
Het adres van deze woning uit 1939 is Bovenweg 58 te Nijeberkoop. Het pand heeft een oppervlakte van 160m² en een perceeloppervlakte van 1560m² en heeft 3 kamers kamers. De geschatte waarde van deze woning is € 549.000.

Bekijk alle woningen in Verspreide huizen Nijeberkoop

Gegevens van Boerderij

Bouwjaar
1939
Geschatte waarde
€ 549.000
Oppervlakte
160 m2
Inhoud
437 m3
Aantal kamers
3 kamers
Soort bouw
Bestaande bouw
Eigendomssituatie
Volle eigendom
Ligging
Aan drukke weg, landelijk gelegen, open ligging en vrij uitzicht
Tuin
Tuin rondom

Voorzieningen in de buurt

Boodschappen7,6 km
Grote supermarkt7,7 km
Cafetaria6,2 km
Restaurant1,6 km
Huisarts5,4 km
Ziekenhuis21,9 km
Kinderdagverblijf1,7 km
BSO3,8 km
Alle voorzieningen in Verspreide huizen Nijeberkoop

Binnenkijken bij Bovenweg 58 te Nijeberkoop

Meer meldingen in deze omgeving

112 melding
Zondag 1-2-2026 om 06:40
Abbendijk, 8422DL Nijeberkoop

112 melding
Zaterdag 31-1-2026 om 23:11
Abbendijk, 8422DL Nijeberkoop

112 melding
Donderdag 29-1-2026 om 13:13
Abbendijk, 8422DL Nijeberkoop

112 melding
Donderdag 29-1-2026 om 13:10
Abbendijk, 8422DL Nijeberkoop

112 melding
Donderdag 29-1-2026 om 13:08
Abbendijk, 8422DL Nijeberkoop

112 melding
Donderdag 29-1-2026 om 13:08
Abbendijk, 8422DL Nijeberkoop

Nieuw bedrijf
Januari 2026
Bovenweg 4, 8422DK NIJEBERKOOP

112 melding
Dinsdag 23-9-2025 om 09:41
Bovenweg, 8422DK Nijeberkoop

Direct een e-mail ontvangen bij nieuwe meldingen in deze regio?

Meld je dan GRATIS aan voor de Oozo Alert service voor Verspreide huizen Nijeberkoop

Instellen

Meer nieuws in Verspreide huizen Nijeberkoop

Weten hoe eenvoudig het is om af te vallen? Zonder pillen en smeersels en zonder je in het zweet te werken!
Kijk op eenvoudig-afvallen.nl

© 2012 - 2026 OOZO.nl - info@oozo.nl - Gegevens verwijderen? | Disclaimer | Privacy statement