Woning De Haal 84 Oostzaan

De Haal 84, 1511AT Oostzaan

Ontvang updates voor De Haal en De Heul en Noordeinde

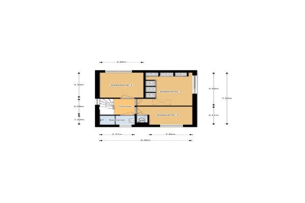
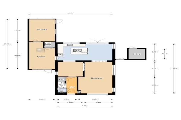
Het adres van deze woning uit 1970 is De Haal 84 te Oostzaan. Het pand heeft een oppervlakte van 142m² en een perceeloppervlakte van 465m² en heeft 6 kamers kamers waarvan 3 slaapkamers. De geschatte waarde van deze woning is € 620.000.

Bekijk alle woningen in De Haal en De Heul en Noordeinde

Gegevens van Eengezinswoning, vrijstaande woning

Bouwjaar
1970
Geschatte waarde
€ 620.000
Oppervlakte
142 m2
Inhoud
527 m3
Aantal kamers
6 kamers
Slaapkamers
3
Badkamers
1 badkamer en 2 aparte toiletten
Soort bouw
Bestaande bouw
Eigendomssituatie
Volle eigendom
Ligging
Aan water, aan rustige weg, vrij uitzicht en open ligging
Tuin
Achtertuin, voortuin en zijtuin
Achtertuin
202 m² (15,5m diep en 13m breed)

Voorzieningen in de buurt

Boodschappen1,4 km
Grote supermarkt1,5 km
Cafetaria1,5 km
Restaurant1,5 km
Huisarts2,1 km
Ziekenhuis6,4 km
Kinderdagverblijf0,9 km
BSO0,8 km
Alle voorzieningen in De Haal en De Heul en Noordeinde

Binnenkijken bij De Haal 84 te Oostzaan

Meer meldingen in deze omgeving

112 melding
Donderdag 30-4-2026 om 13:56
Stationsstraat, Oostzaan

Faillissement
Woensdag 29-4-2026
De Heul 14, 1511AK Oostzaan

112 melding
Dinsdag 28-4-2026 om 14:06
Coentunnelweg, 1511HX Oostzaan

112 melding
Dinsdag 28-4-2026 om 13:30
Coentunnelweg, 1511HX Oostzaan

112 melding
Dinsdag 28-4-2026 om 13:17
Coentunnelweg, 1511HX Oostzaan

112 melding
Donderdag 23-4-2026 om 00:02
Coentunnelweg, 1511HX Oostzaan

112 melding
Woensdag 22-4-2026 om 23:58
Coentunnelweg, 1511HX Oostzaan

112 melding
Woensdag 22-4-2026 om 23:56
Coentunnelweg, 1511HX Oostzaan

Direct een e-mail ontvangen bij nieuwe meldingen in deze regio?

Meld je dan GRATIS aan voor de Oozo Alert service voor De Haal en De Heul en Noordeinde

Instellen

Meer nieuws in De Haal en De Heul en Noordeinde

Weten hoe eenvoudig het is om af te vallen? Zonder pillen en smeersels en zonder je in het zweet te werken!
Kijk op eenvoudig-afvallen.nl

© 2012 - 2026 OOZO.nl - info@oozo.nl - Gegevens verwijderen? | Disclaimer | Privacy statement