Woning Te Nijenhuiswei 35A Wijnjewoude

Te Nijenhuiswei 35A, 9241EA Wijnjewoude

Ontvang updates voor Wijnjewoude

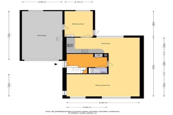
Het adres van deze woning uit 1998 is Te Nijenhuiswei 35A te Wijnjewoude. Het pand heeft een oppervlakte van 116m² en een perceeloppervlakte van 404m² en heeft 3 kamers kamers waarvan 2 slaapkamers. De geschatte waarde van deze woning is € 379.000.

Bekijk alle woningen in Wijnjewoude

Gegevens van Eengezinswoning, 2-onder-1-kapwoning

Bouwjaar
1998
Geschatte waarde
€ 379.000
Oppervlakte
116 m2
Inhoud
420 m3
Aantal kamers
3 kamers
Slaapkamers
2
Badkamers
1 badkamer en 1 apart toilet
Soort bouw
Bestaande bouw
Eigendomssituatie
Volle eigendom
Ligging
Aan rustige weg en in woonwijk
Tuin
Achtertuin en voortuin
Achtertuin
198 m² (18,00 meter diep en 11,00 meter breed)

Voorzieningen in de buurt

Boodschappen0,3 km
Grote supermarkt0,4 km
Cafetaria0,4 km
Restaurant0,3 km
Huisarts1,1 km
Ziekenhuis11,6 km
Kinderdagverblijf0,7 km
BSO0,7 km
Alle voorzieningen in Wijnjewoude

Binnenkijken bij Te Nijenhuiswei 35A te Wijnjewoude

Meer meldingen in deze omgeving

Binnenlands nieuws
Dinsdag 12-5-2026
Wijnjewoude

Binnenkijken bij
Vrijdag 8-5-2026
Hagerank 19, 9241EL Wijnjewoude

Binnenlands nieuws
Donderdag 7-5-2026
Wijnjewoude

Binnenkijken bij
Dinsdag 5-5-2026
Russchenreed 10, 9241EE Wijnjewoude

Binnenlands nieuws
Dinsdag 5-5-2026
Wijnjewoude

Binnenlands nieuws
Vrijdag 1-5-2026
Wijnjewoude



Direct een e-mail ontvangen bij nieuwe meldingen in deze regio?

Meld je dan GRATIS aan voor de Oozo Alert service voor Wijnjewoude

Instellen

Meer nieuws in Wijnjewoude

Weten hoe eenvoudig het is om af te vallen? Zonder pillen en smeersels en zonder je in het zweet te werken!
Kijk op eenvoudig-afvallen.nl

© 2012 - 2026 OOZO.nl - info@oozo.nl - Gegevens verwijderen? | Disclaimer | Privacy statement