Woning Andryssingel 17 Hemrik

Andryssingel 17, 8409JD Hemrik

Ontvang updates voor Hemrik

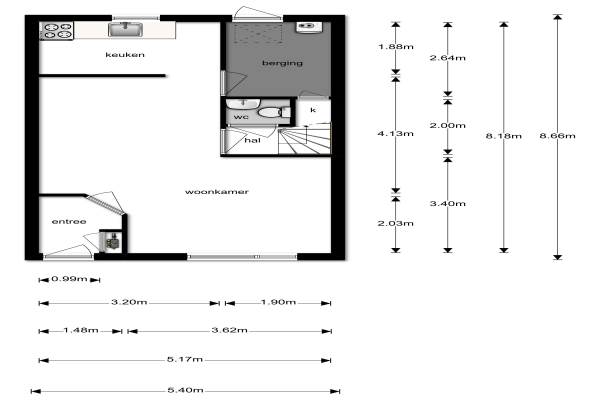
Het adres van deze woning uit 1986 is Andryssingel 17 te Hemrik. Het pand heeft een oppervlakte van 71m² en een perceeloppervlakte van 241m² en heeft 3 kamers kamers waarvan 2 slaapkamers. De geschatte waarde van deze woning is € 105.000.

Bekijk alle woningen in Hemrik

Gegevens van Eengezinswoning, hoekwoning

Bouwjaar
1986
Geschatte waarde
€ 105.000
Oppervlakte
71 m2
Inhoud
249 m3
Aantal kamers
3 kamers
Slaapkamers
2
Badkamers
1 badkamer en 1 apart toilet
Soort bouw
Bestaande bouw
Eigendomssituatie
Volle eigendom
Ligging
In woonwijk
Tuin
Achtertuin, voortuin en zijtuin
Achtertuin
98 m² (11,5m diep en 8,5m breed)

Voorzieningen in de buurt

Binnenkijken bij Andryssingel 17 te Hemrik

Meer meldingen in deze omgeving

112 melding
Maandag 15-12-2025 om 10:12
Binnenwei, Hemrik

Binnenkijken bij
Vrijdag 5-12-2025
Ds. de Boerwei 14, 8409JV Hemrik

Nieuw bedrijf
November 2025
Binnenwei 48, 8409JL Hemrik

Nieuw bedrijf
Oktober 2025
De Manege 38, 8409JS Hemrik

Binnenkijken bij
Zondag 19-10-2025
Ikesingel 11, 8409JC Hemrik

Nieuw bedrijf
Oktober 2025
Engbert Pierswei 39, 8409JW Hemrik

Nieuw bedrijf
Oktober 2025
Sparjeburd 21, 8409CK Hemrik

Nieuw bedrijf
September 2025
Binnenwei 26, 8409JJ Hemrik

Direct een e-mail ontvangen bij nieuwe meldingen in deze regio?

Meld je dan GRATIS aan voor de Oozo Alert service voor Hemrik

Instellen

Meer nieuws in Hemrik

Weten hoe eenvoudig het is om af te vallen? Zonder pillen en smeersels en zonder je in het zweet te werken!
Kijk op eenvoudig-afvallen.nl

© 2012 - 2025 OOZO.nl - info@oozo.nl - Gegevens verwijderen? | Disclaimer | Privacy statement