Woning Omgong 15 Lippenhuizen

Omgong 15, 8408HV Lippenhuizen

Ontvang updates voor Lippenhuizen

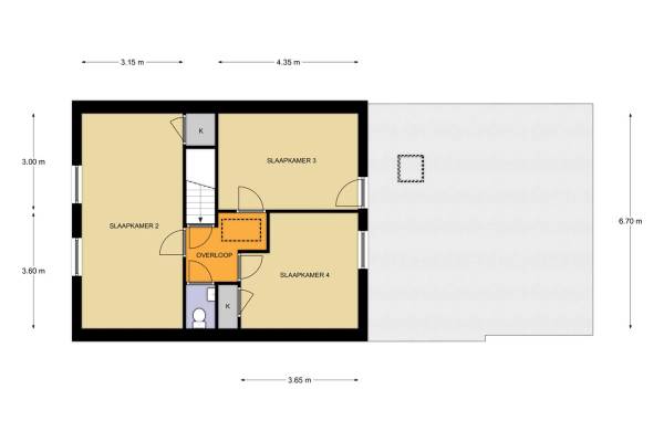
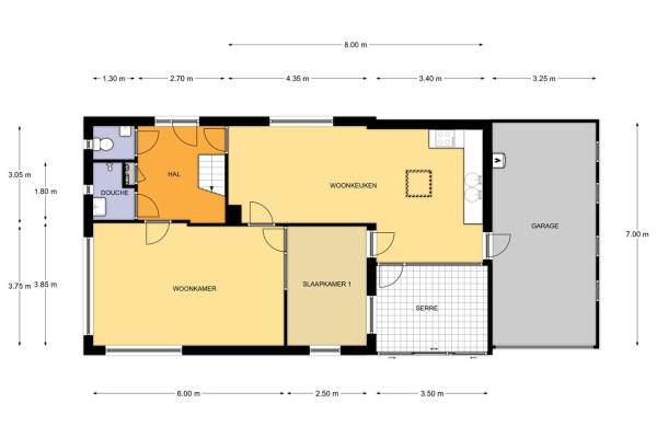
Het adres van deze woning uit 1974 is Omgong 15 te Lippenhuizen. Het pand heeft een oppervlakte van 132m² en een perceeloppervlakte van 478m² en heeft 8 kamers kamers waarvan 4 slaapkamers. De geschatte waarde van deze woning is € 279.500.

Bekijk alle woningen in Lippenhuizen

Gegevens van Eengezinswoning, vrijstaande woning

Bouwjaar
1974
Geschatte waarde
€ 279.500
Oppervlakte
132 m2
Inhoud
435 m3
Aantal kamers
8 kamers
Slaapkamers
4
Badkamers
1 badkamer en 2 aparte toiletten
Soort bouw
Bestaande bouw
Eigendomssituatie
Volle eigendom
Tuin
Achtertuin, voortuin en zijtuin

Voorzieningen in de buurt

Binnenkijken bij Omgong 15 te Lippenhuizen

Meer meldingen in deze omgeving

Nieuw bedrijf
April 2026
Bûkenhage 15, 8408HS Lippenhuizen

Nieuw bedrijf
April 2026
Bûkenhage 15, 8408HS Lippenhuizen

Binnenkijken bij
Maandag 13-4-2026
De Buorren 37, 8408HH Lippenhuizen

Binnenlands nieuws
Dinsdag 7-4-2026
Lippenhuizen

Binnenkijken bij
Woensdag 1-4-2026
De Buorren 33, 8408HG Lippenhuizen

Binnenlands nieuws
Donderdag 12-3-2026
Lippenhuizen

Binnenlands nieuws
Zondag 8-3-2026
Lippenhuizen

Binnenlands nieuws
Vrijdag 6-3-2026
Lippenhuizen

Direct een e-mail ontvangen bij nieuwe meldingen in deze regio?

Meld je dan GRATIS aan voor de Oozo Alert service voor Lippenhuizen

Instellen

Meer nieuws in Lippenhuizen

Weten hoe eenvoudig het is om af te vallen? Zonder pillen en smeersels en zonder je in het zweet te werken!
Kijk op eenvoudig-afvallen.nl

© 2012 - 2026 OOZO.nl - info@oozo.nl - Gegevens verwijderen? | Disclaimer | Privacy statement