Woning Dr. Poelsstraat 12 Berghem

Dr. Poelsstraat 12, 5351GA Berghem

Ontvang updates voor Berghem-Noord

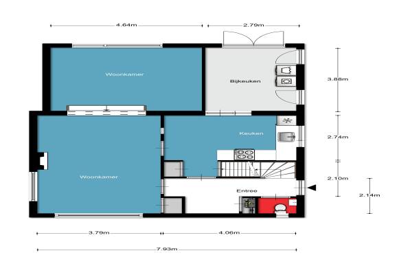
Het adres van deze woning uit 1964 is Dr. Poelsstraat 12 te Berghem. Het pand heeft een oppervlakte van 125m² en een perceeloppervlakte van 400m² en heeft 5 kamers kamers waarvan 3 slaapkamers. De geschatte waarde van deze woning is € 319.500.

Bekijk alle woningen in Berghem-Noord

Gegevens van Eengezinswoning, vrijstaande woning

Bouwjaar
1964
Geschatte waarde
€ 319.500
Oppervlakte
125 m2
Inhoud
445 m3
Aantal kamers
5 kamers
Slaapkamers
3
Soort bouw
Bestaande bouw
Eigendomssituatie
Volle eigendom
Ligging
In woonwijk
Tuin
Tuin rondom

Voorzieningen in de buurt

Boodschappen0,6 km
Grote supermarkt0,5 km
Cafetaria0,4 km
Restaurant0,6 km
Huisarts0,6 km
Ziekenhuis4,8 km
Kinderdagverblijf0,5 km
BSO0,4 km
Alle voorzieningen in Berghem-Noord

Binnenkijken bij Dr. Poelsstraat 12 te Berghem

Meer meldingen in deze omgeving

Nieuw bedrijf
December 2025
Meester Gielenplein 11J, 5351EH Berghem

Nieuw bedrijf
December 2025
Julianastraat 12, 5351AM Berghem

Nieuw bedrijf
December 2025
St. Willibrordusstraat 45A, 5351EE Berghem

Binnenkijken bij
Dinsdag 9-12-2025
Saturnusstraat 20, 5351GX Berghem

Nieuw bedrijf
December 2025
Osseweg 39, 5351AA Berghem

Nieuw bedrijf
December 2025
Burgemeester van Erpstraat 46, 5351AX Berghem

Nieuw bedrijf
December 2025
Het Reut 4, 5351TA Berghem

Nieuw bedrijf
December 2025
Het Reut 4, 5351TA Berghem

Direct een e-mail ontvangen bij nieuwe meldingen in deze regio?

Meld je dan GRATIS aan voor de Oozo Alert service voor Berghem-Noord

Instellen

Meer nieuws in Berghem-Noord

Weten hoe eenvoudig het is om af te vallen? Zonder pillen en smeersels en zonder je in het zweet te werken!
Kijk op eenvoudig-afvallen.nl

© 2012 - 2025 OOZO.nl - info@oozo.nl - Gegevens verwijderen? | Disclaimer | Privacy statement