Woning Landbouwlaan 147 Berghem

Landbouwlaan 147, 5351LA Berghem

Ontvang updates voor Berghem-Zuid

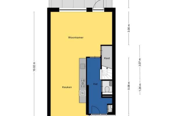
Het adres van deze woning uit 2007 is Landbouwlaan 147 te Berghem. Het pand heeft een oppervlakte van 113m² en een perceeloppervlakte van 166m² en heeft 4 kamers kamers waarvan 3 slaapkamers. De geschatte waarde van deze woning is € 375.000.

Bekijk alle woningen in Berghem-Zuid

Gegevens van Eengezinswoning, tussenwoning

Bouwjaar
2007
Geschatte waarde
€ 375.000
Oppervlakte
113 m2
Inhoud
405 m3
Aantal kamers
4 kamers
Slaapkamers
3
Badkamers
1 badkamer en 1 apart toilet
Soort bouw
Bestaande bouw
Eigendomssituatie
Volle eigendom
Ligging
In woonwijk
Tuin
Achtertuin en voortuin
Achtertuin
8 m² (1,4 meter diep en 5,9 meter breed)

Voorzieningen in de buurt

Boodschappen1,3 km
Grote supermarkt1,3 km
Cafetaria1,3 km
Restaurant1,4 km
Huisarts1,3 km
Ziekenhuis4,9 km
Kinderdagverblijf0,5 km
BSO0,5 km
Alle voorzieningen in Berghem-Zuid

Binnenkijken bij Landbouwlaan 147 te Berghem

Meer meldingen in deze omgeving

Binnenkijken bij
Donderdag 5-3-2026
Havikskruid 62, 5351KG Berghem

Nieuw bedrijf
Maart 2026
Zevenbergseweg 33B, 5351PG Berghem

Nieuw bedrijf
Maart 2026
Landbouwlaan 164, 5351MA Berghem

Nieuw bedrijf
Maart 2026
Koolzaadweg 31, 5351LP Berghem

Binnenkijken bij
Woensdag 4-3-2026
Havikskruid 29, 5351KE Berghem

Binnenkijken bij
Zaterdag 28-2-2026
Landbouwlaan 127, 5351LA Berghem

Binnenkijken bij
Zaterdag 21-2-2026
Havikskruid 25, 5351KE Berghem

Binnenkijken bij
Donderdag 19-2-2026
Schriekse Heihoek 508, 5351SJ Berghem

Direct een e-mail ontvangen bij nieuwe meldingen in deze regio?

Meld je dan GRATIS aan voor de Oozo Alert service voor Berghem-Zuid

Instellen

Meer nieuws in Berghem-Zuid

Weten hoe eenvoudig het is om af te vallen? Zonder pillen en smeersels en zonder je in het zweet te werken!
Kijk op eenvoudig-afvallen.nl

© 2012 - 2026 OOZO.nl - info@oozo.nl - Gegevens verwijderen? | Disclaimer | Privacy statement