Woning Landbouwlaan 96 Berghem

Landbouwlaan 96, 5351LA Berghem

Ontvang updates voor Berghem-Zuid

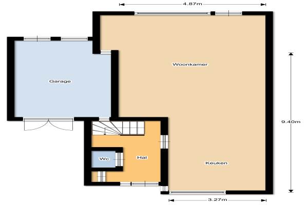
Het adres van deze woning uit 2008 is Landbouwlaan 96 te Berghem. Het pand heeft een oppervlakte van 150m² en een perceeloppervlakte van 288m² en heeft 5 kamers kamers waarvan 4 slaapkamers. De geschatte waarde van deze woning is € 329.000.

Bekijk alle woningen in Berghem-Zuid

Gegevens van Eengezinswoning, 2-onder-1-kapwoning

Bouwjaar
2008
Geschatte waarde
€ 329.000
Oppervlakte
150 m2
Inhoud
550 m3
Aantal kamers
5 kamers
Slaapkamers
4
Soort bouw
Bestaande bouw
Eigendomssituatie
Volle eigendom
Ligging
In woonwijk
Tuin
Achtertuin en voortuin
Achtertuin
130 m² (13m diep en 10m breed)

Voorzieningen in de buurt

Boodschappen1,3 km
Grote supermarkt1,3 km
Cafetaria1,3 km
Restaurant1,4 km
Huisarts1,3 km
Ziekenhuis4,9 km
Kinderdagverblijf0,5 km
BSO0,5 km
Alle voorzieningen in Berghem-Zuid

Binnenkijken bij Landbouwlaan 96 te Berghem

Meer meldingen in deze omgeving

Binnenkijken bij
Donderdag 5-3-2026
Havikskruid 62, 5351KG Berghem

Nieuw bedrijf
Maart 2026
Zevenbergseweg 33B, 5351PG Berghem

Nieuw bedrijf
Maart 2026
Landbouwlaan 164, 5351MA Berghem

Nieuw bedrijf
Maart 2026
Koolzaadweg 31, 5351LP Berghem

Binnenkijken bij
Woensdag 4-3-2026
Havikskruid 29, 5351KE Berghem

Binnenkijken bij
Zaterdag 28-2-2026
Landbouwlaan 127, 5351LA Berghem

Binnenkijken bij
Zaterdag 21-2-2026
Havikskruid 25, 5351KE Berghem

Binnenkijken bij
Donderdag 19-2-2026
Schriekse Heihoek 508, 5351SJ Berghem

Direct een e-mail ontvangen bij nieuwe meldingen in deze regio?

Meld je dan GRATIS aan voor de Oozo Alert service voor Berghem-Zuid

Instellen

Meer nieuws in Berghem-Zuid

Weten hoe eenvoudig het is om af te vallen? Zonder pillen en smeersels en zonder je in het zweet te werken!
Kijk op eenvoudig-afvallen.nl

© 2012 - 2026 OOZO.nl - info@oozo.nl - Gegevens verwijderen? | Disclaimer | Privacy statement