Woning Tarwestraat 65 Berghem

Tarwestraat 65, 5351MK Berghem

Ontvang updates voor Berghem-Zuid

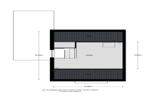
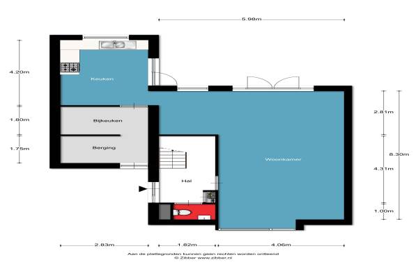
Het adres van deze woning uit 2006 is Tarwestraat 65 te Berghem. Het pand heeft een oppervlakte van 125m² en een perceeloppervlakte van 262m² en heeft 5 kamers kamers waarvan 3 slaapkamers. De geschatte waarde van deze woning is € 335.000.

Bekijk alle woningen in Berghem-Zuid

Gegevens van Eengezinswoning, 2-onder-1-kapwoning

Bouwjaar
2006
Geschatte waarde
€ 335.000
Oppervlakte
125 m2
Inhoud
530 m3
Aantal kamers
5 kamers
Slaapkamers
3
Soort bouw
Bestaande bouw
Eigendomssituatie
Volle eigendom
Tuin
Achtertuin en voortuin
Achtertuin
126 m² (13m diep en 9,7m breed)

Voorzieningen in de buurt

Boodschappen1,3 km
Grote supermarkt1,3 km
Cafetaria1,3 km
Restaurant1,4 km
Huisarts1,3 km
Ziekenhuis4,9 km
Kinderdagverblijf0,5 km
BSO0,5 km
Alle voorzieningen in Berghem-Zuid

Binnenkijken bij Tarwestraat 65 te Berghem

Meer meldingen in deze omgeving

112 melding
Zaterdag 14-2-2026 om 11:23
Hoessenboslaan, 5351PB Berghem

112 melding
Donderdag 5-2-2026 om 12:08
Moeshof, 5351LC Berghem

112 melding
Donderdag 5-2-2026 om 12:04
Moeshof, 5351LC Berghem

112 melding
Donderdag 5-2-2026 om 11:55
Moeshof, 5351LC Berghem

Binnenkijken bij
Donderdag 5-2-2026
Havikskruid 18, 5351KG Berghem

Nieuw bedrijf
Februari 2026
Koolzaadweg 39, 5351LP Berghem

Nieuw bedrijf
Februari 2026
Wanmolen 27, 5351RA Berghem

Binnenkijken bij
Zondag 1-2-2026
Zevenbergseweg 30, 5351PH Berghem

Direct een e-mail ontvangen bij nieuwe meldingen in deze regio?

Meld je dan GRATIS aan voor de Oozo Alert service voor Berghem-Zuid

Instellen

Meer nieuws in Berghem-Zuid

Weten hoe eenvoudig het is om af te vallen? Zonder pillen en smeersels en zonder je in het zweet te werken!
Kijk op eenvoudig-afvallen.nl

© 2012 - 2026 OOZO.nl - info@oozo.nl - Gegevens verwijderen? | Disclaimer | Privacy statement