Woning Koornstraat 32A OSS

Koornstraat 32A, 5341BR OSS

Ontvang updates voor Centrum Noord

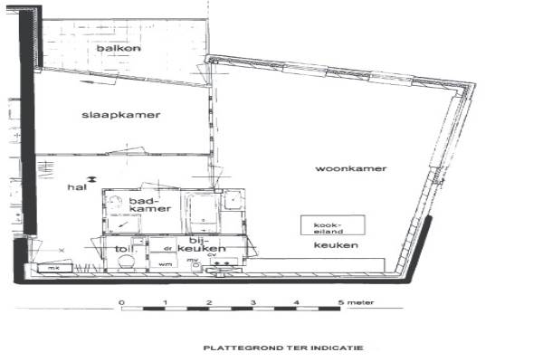
Het adres van deze woning uit 2005 is Koornstraat 32A te OSS. Het pand heeft een oppervlakte van 89m² en heeft 2 kamers kamers waarvan 1 slaapkamers. De geschatte waarde van deze woning is € 290.000.

Bekijk alle woningen in Centrum Noord

Gegevens van Bovenwoning

Bouwjaar
2005
Geschatte waarde
€ 290.000
Oppervlakte
89 m2
Aantal kamers
2 kamers
Slaapkamers
1
Tuin
Tuin

Voorzieningen in de buurt

Boodschappen0,1 km
Grote supermarkt0,2 km
Cafetaria0,2 km
Restaurant0,2 km
Huisarts0,7 km
Ziekenhuis2,4 km
Kinderdagverblijf0,3 km
BSO0,2 km
Alle voorzieningen in Centrum Noord

Binnenkijken bij Koornstraat 32A te OSS

Meer meldingen in deze omgeving

Binnenkijken bij
Vrijdag 21-11-2025
Fratershof 26, 5341BN Oss

Nieuw bedrijf
November 2025
Varkensmarkt 4, 5341DB Oss

Binnenkijken bij
Zondag 16-11-2025
Terwaenen 84, 5341DH Oss

Binnenkijken bij
Zaterdag 15-11-2025
Terwaenen 36, 5341DG Oss

Binnenkijken bij
Zaterdag 15-11-2025
Koornstraat 21, 5341BP Oss

Binnenkijken bij
Dinsdag 11-11-2025
Hooghuisstraat 20E, 5341CE Oss

Binnenkijken bij
Dinsdag 11-11-2025
Terwaenen 33, 5341DC Oss

Binnenkijken bij
Dinsdag 11-11-2025
Koornstraat 28H, 5341BR Oss

Direct een e-mail ontvangen bij nieuwe meldingen in deze regio?

Meld je dan GRATIS aan voor de Oozo Alert service voor Centrum Noord

Instellen

Meer nieuws in Centrum Noord

Weten hoe eenvoudig het is om af te vallen? Zonder pillen en smeersels en zonder je in het zweet te werken!
Kijk op eenvoudig-afvallen.nl

© 2012 - 2025 OOZO.nl - info@oozo.nl - Gegevens verwijderen? | Disclaimer | Privacy statement