Woning Haagpoort 15 Oss

Haagpoort 15, 5346LC Oss

Ontvang updates voor Rusheuvel

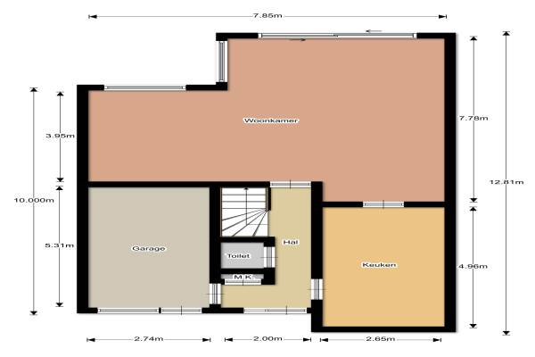
Het adres van deze woning uit 2000 is Haagpoort 15 te Oss. Het pand heeft een oppervlakte van 155m² en een perceeloppervlakte van 252m² en heeft 5 kamers kamers waarvan 4 slaapkamers. De geschatte waarde van deze woning is € 335.000.

Bekijk alle woningen in Rusheuvel

Gegevens van Eengezinswoning, 2-onder-1-kapwoning

Bouwjaar
2000
Geschatte waarde
€ 335.000
Oppervlakte
155 m2
Inhoud
520 m3
Aantal kamers
5 kamers
Slaapkamers
4
Badkamers
1 badkamer en 1 apart toilet
Soort bouw
Bestaande bouw
Eigendomssituatie
Volle eigendom
Ligging
Aan rustige weg en in woonwijk
Tuin
Achtertuin en voortuin
Achtertuin
86 m² (9m diep en 9,5m breed)

Voorzieningen in de buurt

Boodschappen1,2 km
Grote supermarkt1,2 km
Cafetaria1,0 km
Restaurant1,3 km
Huisarts1,8 km
Ziekenhuis3,6 km
Kinderdagverblijf0,3 km
BSO0,3 km
Alle voorzieningen in Rusheuvel

Binnenkijken bij Haagpoort 15 te Oss

Meer meldingen in deze omgeving

Nieuw bedrijf
November 2025
Oosthaag 47, 5346LB Oss

Binnenkijken bij
Dinsdag 11-11-2025
Oosthaag 49, 5346LB Oss

Nieuw bedrijf
Oktober 2025
Haagpoort 20, 5346LD Oss

112 melding
Zondag 28-9-2025 om 21:17
Oosthaag, 5346LB Oss

Binnenkijken bij
Maandag 7-7-2025
Oijenseweg 171, 5346KA Oss

Nieuw bedrijf
Juli 2025
Oosthaag 7, 5346LB Oss

Binnenkijken bij
Maandag 12-5-2025
Oosthaag 63, 5346LB Oss

Binnenkijken bij
Maandag 12-5-2025
Westhaag 13, 5346LA Oss

Direct een e-mail ontvangen bij nieuwe meldingen in deze regio?

Meld je dan GRATIS aan voor de Oozo Alert service voor Rusheuvel

Instellen

Meer nieuws in Rusheuvel

Weten hoe eenvoudig het is om af te vallen? Zonder pillen en smeersels en zonder je in het zweet te werken!
Kijk op eenvoudig-afvallen.nl

© 2012 - 2026 OOZO.nl - info@oozo.nl - Gegevens verwijderen? | Disclaimer | Privacy statement