Woning Haagpoort 13 Oss

Haagpoort 13, 5346LC Oss

Ontvang updates voor Rusheuvel

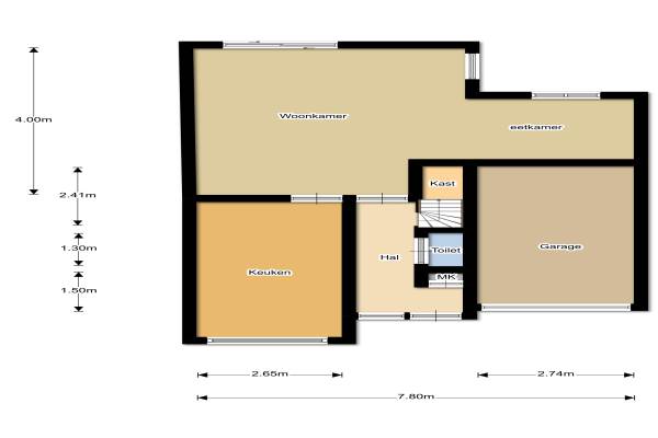
Het adres van deze woning uit 2000 is Haagpoort 13 te Oss. Het pand heeft een oppervlakte van 140m² en een perceeloppervlakte van 252m² en heeft 5 kamers kamers waarvan 3 slaapkamers. De geschatte waarde van deze woning is € 335.000.

Bekijk alle woningen in Rusheuvel

Gegevens van Eengezinswoning, 2-onder-1-kapwoning

Bouwjaar
2000
Geschatte waarde
€ 335.000
Oppervlakte
140 m2
Inhoud
520 m3
Aantal kamers
5 kamers
Slaapkamers
3
Soort bouw
Bestaande bouw
Eigendomssituatie
Volle eigendom
Tuin
Achtertuin en voortuin
Achtertuin
90 m² (10m diep en 9m breed)

Voorzieningen in de buurt

Boodschappen1,2 km
Grote supermarkt1,2 km
Cafetaria1,0 km
Restaurant1,3 km
Huisarts1,8 km
Ziekenhuis3,6 km
Kinderdagverblijf0,3 km
BSO0,3 km
Alle voorzieningen in Rusheuvel

Binnenkijken bij Haagpoort 13 te Oss

Meer meldingen in deze omgeving

Binnenkijken bij
Zondag 29-3-2026
Westhaag 12, 5346LA Oss

Binnenkijken bij
Woensdag 25-3-2026
Haagpoort 25, 5346LC Oss

Binnenkijken bij
Woensdag 25-2-2026
Oosthaag 53, 5346LB Oss

Nieuw bedrijf
November 2025
Oosthaag 47, 5346LB Oss

Binnenkijken bij
Dinsdag 11-11-2025
Oosthaag 49, 5346LB Oss

Nieuw bedrijf
Oktober 2025
Haagpoort 20, 5346LD Oss

112 melding
Zondag 28-9-2025 om 21:17
Oosthaag, 5346LB Oss

Binnenkijken bij
Maandag 7-7-2025
Oijenseweg 171, 5346KA Oss

Direct een e-mail ontvangen bij nieuwe meldingen in deze regio?

Meld je dan GRATIS aan voor de Oozo Alert service voor Rusheuvel

Instellen

Meer nieuws in Rusheuvel

Weten hoe eenvoudig het is om af te vallen? Zonder pillen en smeersels en zonder je in het zweet te werken!
Kijk op eenvoudig-afvallen.nl

© 2012 - 2026 OOZO.nl - info@oozo.nl - Gegevens verwijderen? | Disclaimer | Privacy statement