Woning Den Ong 39 Ravenstein

Den Ong 39, 5371DH Ravenstein

Ontvang updates voor De Weem

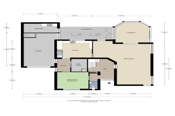
Het adres van deze woning uit 1994 is Den Ong 39 te Ravenstein. Het pand heeft een oppervlakte van 189m² en een perceeloppervlakte van 679m² en heeft 6 kamers kamers waarvan 4 slaapkamers. De geschatte waarde van deze woning is € 525.000.

Bekijk alle woningen in De Weem

Gegevens van Eengezinswoning, vrijstaande woning

Bouwjaar
1994
Geschatte waarde
€ 525.000
Oppervlakte
189 m2
Inhoud
813 m3
Aantal kamers
6 kamers
Slaapkamers
4
Badkamers
1 badkamer en 1 apart toilet
Soort bouw
Bestaande bouw
Eigendomssituatie
Volle eigendom
Ligging
Aan rustige weg en in woonwijk
Tuin
Tuin rondom

Voorzieningen in de buurt

Boodschappen1,0 km
Grote supermarkt1,0 km
Cafetaria0,7 km
Restaurant1,3 km
Huisarts0,5 km
Ziekenhuis11,9 km
Kinderdagverblijf1,1 km
BSO1,1 km
Alle voorzieningen in De Weem

Binnenkijken bij Den Ong 39 te Ravenstein

Meer meldingen in deze omgeving

Nieuw bedrijf
Maart 2026
Hongerveldstraat 17, 5371NB Ravenstein

Nieuw bedrijf
Januari 2026
Kromland 20, 5371MV Ravenstein

Binnenkijken bij
Donderdag 11-12-2025
Den Ong 22, 5371DJ Ravenstein

112 melding
Woensdag 26-11-2025 om 07:28
Dorskamp, Ravenstein

Nieuw bedrijf
Oktober 2025
Hoekstraat 1, 5358NR Huisseling

Binnenkijken bij
Maandag 22-9-2025
Roesterd 13, 5371MS Ravenstein

Binnenkijken bij
Vrijdag 19-9-2025
Den Ong 5, 5371DH Ravenstein

112 melding
Maandag 1-9-2025 om 11:29
Dorskamp, Ravenstein

Direct een e-mail ontvangen bij nieuwe meldingen in deze regio?

Meld je dan GRATIS aan voor de Oozo Alert service voor De Weem

Instellen

Meer nieuws in De Weem

Weten hoe eenvoudig het is om af te vallen? Zonder pillen en smeersels en zonder je in het zweet te werken!
Kijk op eenvoudig-afvallen.nl

© 2012 - 2026 OOZO.nl - info@oozo.nl - Gegevens verwijderen? | Disclaimer | Privacy statement