Woning Heuveleindstraat 2 Huisseling

Heuveleindstraat 2, 5358NJ Huisseling

Ontvang updates voor Huisseling

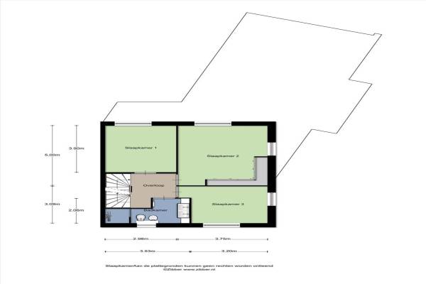
Het adres van deze woning uit 1931 is Heuveleindstraat 2 te Huisseling. Het pand heeft een oppervlakte van 159m² en een perceeloppervlakte van 5635m² en heeft 8 kamers kamers waarvan 4 slaapkamers. De geschatte waarde van deze woning is € 665.000.

Bekijk alle woningen in Huisseling

Gegevens van Eengezinswoning, halfvrijstaande woning

Bouwjaar
1931
Geschatte waarde
€ 665.000
Oppervlakte
159 m2
Inhoud
600 m3
Aantal kamers
8 kamers
Slaapkamers
4
Soort bouw
Bestaande bouw
Eigendomssituatie
Volle eigendom
Ligging
Vrij uitzicht, aan bosrand, aan rustige weg en in bosrijke omgeving
Tuin
Tuin rondom

Voorzieningen in de buurt

Boodschappen1,4 km
Grote supermarkt1,4 km
Cafetaria1,1 km
Restaurant1,6 km
Huisarts0,9 km
Ziekenhuis11,4 km
Kinderdagverblijf0,8 km
BSO0,8 km
Alle voorzieningen in Huisseling

Binnenkijken bij Heuveleindstraat 2 te Huisseling

Meer meldingen in deze omgeving

Nieuw bedrijf
November 2025
Grotestraat 45, 5358BW Huisseling

Binnenlands nieuws
Donderdag 20-11-2025
Huisseling

Binnenlands nieuws
Donderdag 20-11-2025
Huisseling

Binnenlands nieuws
Zaterdag 15-11-2025
Huisseling

Nieuw bedrijf
November 2025
Daalderstraatje 3, 5358NS Huisseling

Binnenkijken bij
Dinsdag 11-11-2025
Heuveleindstraat 7, 5358NJ Huisseling

Binnenlands nieuws
Zondag 2-11-2025
Huisseling

Binnenkijken bij
Woensdag 29-10-2025
Daalderstraatje 3, 5358NS Huisseling

Direct een e-mail ontvangen bij nieuwe meldingen in deze regio?

Meld je dan GRATIS aan voor de Oozo Alert service voor Huisseling

Instellen

Meer nieuws in Huisseling

Weten hoe eenvoudig het is om af te vallen? Zonder pillen en smeersels en zonder je in het zweet te werken!
Kijk op eenvoudig-afvallen.nl

© 2012 - 2025 OOZO.nl - info@oozo.nl - Gegevens verwijderen? | Disclaimer | Privacy statement