Woning Sibeliuslaan 17 Oss

Sibeliuslaan 17, 5343BV Oss

Ontvang updates voor Wagenaarstraat en omgeving

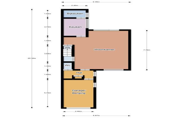
Het adres van deze woning uit 1978 is Sibeliuslaan 17 te Oss. Het pand heeft een oppervlakte van 124m² en een perceeloppervlakte van 195m² en heeft 5 kamers kamers waarvan 4 slaapkamers. De geschatte waarde van deze woning is € 225.000.

Bekijk alle woningen in Wagenaarstraat en omgeving

Gegevens van Eengezinswoning, tussenwoning

Bouwjaar
1978
Geschatte waarde
€ 225.000
Oppervlakte
124 m2
Inhoud
490 m3
Aantal kamers
5 kamers
Slaapkamers
4
Badkamers
1 badkamer en 1 apart toilet
Soort bouw
Bestaande bouw
Eigendomssituatie
Volle eigendom
Ligging
In woonwijk
Tuin
Achtertuin en voortuin
Achtertuin
88 m² (13m diep en 6,8m breed)

Voorzieningen in de buurt

Boodschappen1,0 km
Grote supermarkt1,1 km
Cafetaria0,5 km
Restaurant1,1 km
Huisarts0,6 km
Ziekenhuis1,2 km
Kinderdagverblijf0,5 km
BSO0,5 km
Alle voorzieningen in Wagenaarstraat en omgeving

Binnenkijken bij Sibeliuslaan 17 te Oss

Meer meldingen in deze omgeving

Binnenkijken bij
Dinsdag 25-11-2025
Verdistraat 276, 5343VM Oss

Nieuw bedrijf
November 2025
Sibeliuspark 356, 5343BN Oss

Binnenkijken bij
Dinsdag 11-11-2025
Verdistraat 18, 5343VE Oss

Nieuw bedrijf
November 2025
Wagenaarstraat 438, 5343CV Oss

Binnenkijken bij
Woensdag 29-10-2025
Wagenaarstraat 313, 5343CH Oss

Binnenkijken bij
Zondag 19-10-2025
Wagenaarstraat 88, 5343CL Oss

Nieuw bedrijf
Oktober 2025
Wagenaarstraat 462, 5343CW Oss

Nieuw bedrijf
Oktober 2025
De stek 6, 5343VT Oss

Direct een e-mail ontvangen bij nieuwe meldingen in deze regio?

Meld je dan GRATIS aan voor de Oozo Alert service voor Wagenaarstraat en omgeving

Instellen

Meer nieuws in Wagenaarstraat en omgeving

Weten hoe eenvoudig het is om af te vallen? Zonder pillen en smeersels en zonder je in het zweet te werken!
Kijk op eenvoudig-afvallen.nl

© 2012 - 2025 OOZO.nl - info@oozo.nl - Gegevens verwijderen? | Disclaimer | Privacy statement