Woning Sibeliuslaan 12 Oss

Sibeliuslaan 12, 5343BX Oss

Ontvang updates voor Wagenaarstraat en omgeving

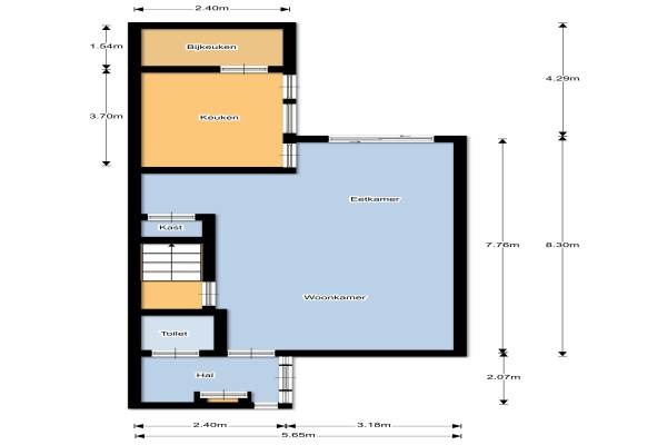
Het adres van deze woning uit 1978 is Sibeliuslaan 12 te Oss. Het pand heeft een oppervlakte van 149m² en een perceeloppervlakte van 180m² en heeft 5 kamers kamers waarvan 4 slaapkamers. De geschatte waarde van deze woning is € 214.500.

Bekijk alle woningen in Wagenaarstraat en omgeving

Gegevens van Eengezinswoning, tussenwoning

Bouwjaar
1978
Geschatte waarde
€ 214.500
Oppervlakte
149 m2
Inhoud
375 m3
Aantal kamers
5 kamers
Slaapkamers
4
Badkamers
2 badkamers en 2 aparte toiletten
Soort bouw
Bestaande bouw
Eigendomssituatie
Volle eigendom
Ligging
Aan park en in woonwijk
Tuin
Achtertuin en voortuin
Achtertuin
68 m² (12m diep en 5,7m breed)

Voorzieningen in de buurt

Boodschappen1,0 km
Grote supermarkt1,1 km
Cafetaria0,5 km
Restaurant1,1 km
Huisarts0,6 km
Ziekenhuis1,2 km
Kinderdagverblijf0,5 km
BSO0,5 km
Alle voorzieningen in Wagenaarstraat en omgeving

Binnenkijken bij Sibeliuslaan 12 te Oss

Meer meldingen in deze omgeving

Nieuw bedrijf
Maart 2026
Sibeliuspark 335, 5343BM Oss

Nieuw bedrijf
Maart 2026
Sibeliuspark 451, 5343BP Oss

Binnenkijken bij
Zaterdag 7-3-2026
Van Anrooijstraat 54, 5343BC Oss

Binnenkijken bij
Dinsdag 3-3-2026
Vivaldistraat 44, 5343EP Oss

Binnenkijken bij
Donderdag 19-2-2026
Wagenaarstraat 46, 5343CL Oss

Binnenkijken bij
Donderdag 12-2-2026
Verdistraat 58, 5343VG Oss

Binnenkijken bij
Zaterdag 7-2-2026
Van Anrooijstraat 120, 5343BE Oss

Faillissement
Woensdag 28-1-2026
Wagenaarstraat 464, 5343CW Oss

Direct een e-mail ontvangen bij nieuwe meldingen in deze regio?

Meld je dan GRATIS aan voor de Oozo Alert service voor Wagenaarstraat en omgeving

Instellen

Meer nieuws in Wagenaarstraat en omgeving

Weten hoe eenvoudig het is om af te vallen? Zonder pillen en smeersels en zonder je in het zweet te werken!
Kijk op eenvoudig-afvallen.nl

© 2012 - 2026 OOZO.nl - info@oozo.nl - Gegevens verwijderen? | Disclaimer | Privacy statement