Woning Teugenaarsstraat 52 Oss

Teugenaarsstraat 52, 5348JE Oss

Ontvang updates voor Berghemseweg Zuid

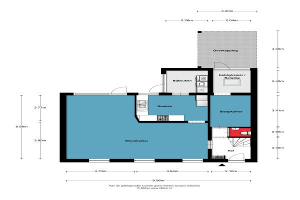
Het adres van deze woning uit 1982 is Teugenaarsstraat 52 te Oss. Het pand heeft 5 kamers kamers waarvan 4 slaapkamers. De geschatte waarde van deze woning is € 259.500.

Bekijk alle woningen in Berghemseweg Zuid

Gegevens van Eengezinswoning, halfvrijstaande woning

Bouwjaar
1982
Geschatte waarde
€ 259.500
Oppervlakte
0 m2
Inhoud
460 m3
Aantal kamers
5 kamers
Slaapkamers
4
Badkamers
1 apart toilet
Soort bouw
Bestaande bouw
Eigendomssituatie
Volle eigendom
Ligging
Aan rustige weg en in woonwijk
Tuin
Achtertuin
Achtertuin
168 m² (14m diep en 12m breed)

Voorzieningen in de buurt

Boodschappen0,3 km
Grote supermarkt0,5 km
Cafetaria0,3 km
Restaurant0,3 km
Huisarts0,3 km
Ziekenhuis2,1 km
Kinderdagverblijf0,7 km
BSO0,6 km
Alle voorzieningen in Berghemseweg Zuid

Binnenkijken bij Teugenaarsstraat 52 te Oss

Meer meldingen in deze omgeving

Binnenkijken bij
Vrijdag 28-11-2025
Schietspoel 207, 5348KW Oss

Nieuw bedrijf
November 2025
Berghemseweg 139, 5348CC Oss

Nieuw bedrijf
November 2025
Doelenstraat 4, 5348JR Oss

112 melding
Woensdag 26-11-2025 om 07:36
Koningsloper, 5348KS Oss

112 melding
Woensdag 26-11-2025 om 07:11
Koningsloper, Oss

112 melding
Woensdag 26-11-2025 om 07:08
Koningsloper, 5348KS Oss

112 melding
Woensdag 26-11-2025 om 07:08
Koningsloper, 5348KS Oss

Binnenkijken bij
Dinsdag 25-11-2025
Koningsloper 20, 5348KT Oss

Direct een e-mail ontvangen bij nieuwe meldingen in deze regio?

Meld je dan GRATIS aan voor de Oozo Alert service voor Berghemseweg Zuid

Instellen

Meer nieuws in Berghemseweg Zuid

Weten hoe eenvoudig het is om af te vallen? Zonder pillen en smeersels en zonder je in het zweet te werken!
Kijk op eenvoudig-afvallen.nl

© 2012 - 2025 OOZO.nl - info@oozo.nl - Gegevens verwijderen? | Disclaimer | Privacy statement