Woning Condorstraat 44 Oss

Condorstraat 44, 5348XT Oss

Ontvang updates voor Roofvogelbuurt

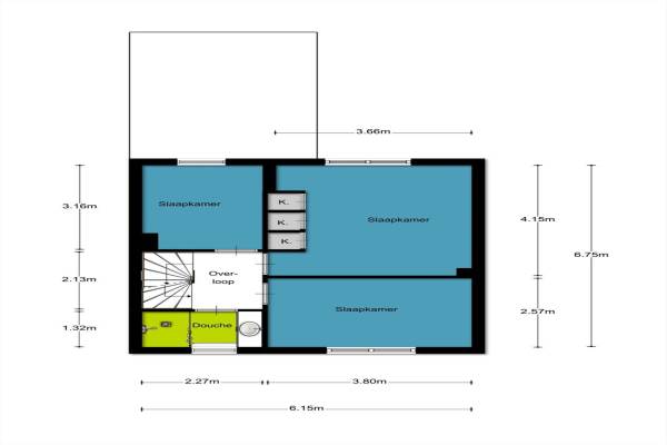
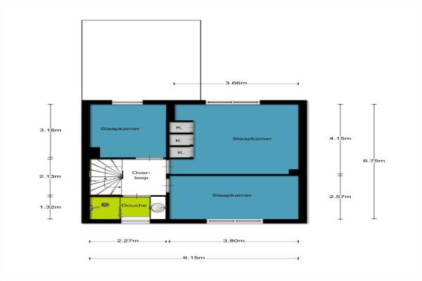
Het adres van deze woning uit 1958 is Condorstraat 44 te Oss. Het pand heeft een oppervlakte van 98m² en een perceeloppervlakte van 179m² en heeft 5 kamers kamers waarvan 4 slaapkamers. De geschatte waarde van deze woning is € 169.000.

Bekijk alle woningen in Roofvogelbuurt

Gegevens van Eengezinswoning, tussenwoning

Bouwjaar
1958
Geschatte waarde
€ 169.000
Oppervlakte
98 m2
Inhoud
382 m3
Aantal kamers
5 kamers
Slaapkamers
4
Soort bouw
Bestaande bouw

Voorzieningen in de buurt

Boodschappen0,7 km
Grote supermarkt1,2 km
Cafetaria0,4 km
Restaurant1,4 km
Huisarts1,3 km
Ziekenhuis2,8 km
Kinderdagverblijf0,8 km
BSO0,8 km
Alle voorzieningen in Roofvogelbuurt

Binnenkijken bij Condorstraat 44 te Oss

Meer meldingen in deze omgeving

Binnenkijken bij
Donderdag 9-10-2025
Condorstraat 13, 5348XS Oss

Nieuw bedrijf
Oktober 2025
Havikstraat 24, 5348XX Oss

112 melding
Maandag 29-9-2025 om 00:21
Valkstraat, 5348XR Oss

Nieuw bedrijf
September 2025
Landweerstraat-Noord 74, 5348ED Oss

112 melding
Donderdag 21-8-2025 om 16:53
Landweerstraat-Noord, Oss

112 melding
Donderdag 21-8-2025 om 14:03
Landweerstraat-Noord, 5348EE Oss

112 melding
Donderdag 21-8-2025 om 14:03
Landweerstraat-Noord, 5348EE Oss

112 melding
Zondag 17-8-2025 om 22:10
Sperwerstraat, Oss

Direct een e-mail ontvangen bij nieuwe meldingen in deze regio?

Meld je dan GRATIS aan voor de Oozo Alert service voor Roofvogelbuurt

Instellen

Meer nieuws in Roofvogelbuurt

Weten hoe eenvoudig het is om af te vallen? Zonder pillen en smeersels en zonder je in het zweet te werken!
Kijk op eenvoudig-afvallen.nl

© 2012 - 2025 OOZO.nl - info@oozo.nl - Gegevens verwijderen? | Disclaimer | Privacy statement