Woning Goudplevier 15 Oss

Goudplevier 15, 5348ZA Oss

Ontvang updates voor Schadewijk Noord-Oost

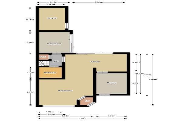
Het adres van deze woning uit 1986 is Goudplevier 15 te Oss. Het pand heeft een oppervlakte van 106m² en een perceeloppervlakte van 189m² en heeft 4 kamers kamers waarvan 3 slaapkamers. De geschatte waarde van deze woning is € 229.000.

Bekijk alle woningen in Schadewijk Noord-Oost

Gegevens van Bungalow, 2-onder-1-kapwoning

Bouwjaar
1986
Geschatte waarde
€ 229.000
Oppervlakte
106 m2
Inhoud
350 m3
Aantal kamers
4 kamers
Slaapkamers
3
Badkamers
1 badkamer en 1 apart toilet
Soort bouw
Bestaande bouw
Eigendomssituatie
Volle eigendom
Ligging
In woonwijk
Tuin
Achtertuin en voortuin
Achtertuin
36 m² (8m diep en 4,5m breed)

Voorzieningen in de buurt

Boodschappen0,9 km
Grote supermarkt1,2 km
Cafetaria0,3 km
Restaurant1,4 km
Huisarts1,4 km
Ziekenhuis3,2 km
Kinderdagverblijf0,8 km
BSO0,7 km
Alle voorzieningen in Schadewijk Noord-Oost

Binnenkijken bij Goudplevier 15 te Oss

Meer meldingen in deze omgeving

112 melding
Dinsdag 13-1-2026 om 15:41
Berghemseweg, 5348CN Oss

112 melding
Dinsdag 13-1-2026 om 15:36
Berghemseweg, 5348CN Oss

Nieuw bedrijf
December 2025
Grutto 86, 5348VM Oss

Binnenkijken bij
Zaterdag 20-12-2025
Kievit 136, 5348VJ Oss

Nieuw bedrijf
December 2025
Goudplevier 92, 5348ZG Oss

Binnenkijken bij
Vrijdag 28-11-2025
Goudplevier 76, 5348ZG Oss

Nieuw bedrijf
November 2025
Kievit 7, 5348VA Oss

Nieuw bedrijf
Oktober 2025
Goudplevier 102, 5348ZG Oss

Direct een e-mail ontvangen bij nieuwe meldingen in deze regio?

Meld je dan GRATIS aan voor de Oozo Alert service voor Schadewijk Noord-Oost

Instellen

Meer nieuws in Schadewijk Noord-Oost

Weten hoe eenvoudig het is om af te vallen? Zonder pillen en smeersels en zonder je in het zweet te werken!
Kijk op eenvoudig-afvallen.nl

© 2012 - 2026 OOZO.nl - info@oozo.nl - Gegevens verwijderen? | Disclaimer | Privacy statement