Woning Singel 1940-1945 102 102a Oss

Singel 1940-1945 102 102a, 5348PR Oss

Ontvang updates voor Verzetsheldenbuurt I

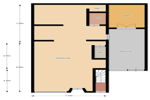
Het adres van deze woning uit 1950 is Singel 1940-1945 102 102a te Oss. Het pand heeft een oppervlakte van 235m² en een perceeloppervlakte van 320m² en heeft 7 kamers kamers waarvan 3 slaapkamers. De geschatte waarde van deze woning is € 549.000.

Bekijk alle woningen in Verzetsheldenbuurt I

Gegevens van Eengezinswoning, vrijstaande woning

Bouwjaar
1950
Geschatte waarde
€ 549.000
Oppervlakte
235 m2
Inhoud
865 m3
Aantal kamers
7 kamers
Slaapkamers
3
Badkamers
1 badkamer en 2 aparte toiletten
Soort bouw
Bestaande bouw
Eigendomssituatie
Volle eigendom
Ligging
In woonwijk

Voorzieningen in de buurt

Boodschappen0,3 km
Grote supermarkt0,3 km
Cafetaria0,3 km
Restaurant0,6 km
Huisarts0,5 km
Ziekenhuis2,6 km
Kinderdagverblijf0,4 km
BSO0,3 km
Alle voorzieningen in Verzetsheldenbuurt I

Binnenkijken bij Singel 1940-1945 102 102a te Oss

Meer meldingen in deze omgeving

Nieuw bedrijf
Oktober 2025
Rudolf van Baarlestraat 12, 5348AR Oss

Nieuw bedrijf
Oktober 2025
Professor Regoutstraat 45, 5348AA Oss

Binnenkijken bij
Zaterdag 11-10-2025
Gerrit van der Veenstraat 211, 5348RZ Oss

Binnenkijken bij
Donderdag 9-10-2025
Schadewijkstraat 11, 5348BA Oss

Binnenkijken bij
Donderdag 9-10-2025
Marius de Langenstraat 112, 5348AK Oss

Nieuw bedrijf
Oktober 2025
Rudolf van Baarlestraat 12, 5348AR Oss

Nieuw bedrijf
Oktober 2025
Johan Doornstraat 28, 5348AT Oss

Nieuw bedrijf
Oktober 2025
Linkensweg 62, 5341CC Oss

Direct een e-mail ontvangen bij nieuwe meldingen in deze regio?

Meld je dan GRATIS aan voor de Oozo Alert service voor Verzetsheldenbuurt I

Instellen

Meer nieuws in Verzetsheldenbuurt I

Weten hoe eenvoudig het is om af te vallen? Zonder pillen en smeersels en zonder je in het zweet te werken!
Kijk op eenvoudig-afvallen.nl

© 2012 - 2025 OOZO.nl - info@oozo.nl - Gegevens verwijderen? | Disclaimer | Privacy statement