Woning Burgemeester Ploegmakerslaan 11 Oss

Burgemeester Ploegmakerslaan 11, 5345VG Oss

Ontvang updates voor Vlashoek

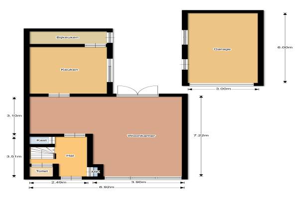
Het adres van deze woning uit 1959 is Burgemeester Ploegmakerslaan 11 te Oss. Het pand heeft een oppervlakte van 105m² en een perceeloppervlakte van 246m² en heeft 5 kamers kamers waarvan 4 slaapkamers. De geschatte waarde van deze woning is € 195.000.

Bekijk alle woningen in Vlashoek

Gegevens van Eengezinswoning, 2-onder-1-kapwoning

Bouwjaar
1959
Geschatte waarde
€ 195.000
Oppervlakte
105 m2
Inhoud
365 m3
Aantal kamers
5 kamers
Slaapkamers
4
Badkamers
1 badkamer en 1 apart toilet
Soort bouw
Bestaande bouw
Eigendomssituatie
Volle eigendom
Ligging
In woonwijk
Tuin
Achtertuin, voortuin en zijtuin
Achtertuin
75 m² (7,5m diep en 10m breed)

Voorzieningen in de buurt

Boodschappen0,3 km
Grote supermarkt0,9 km
Cafetaria0,3 km
Restaurant0,5 km
Huisarts0,8 km
Ziekenhuis1,9 km
Kinderdagverblijf0,3 km
BSO0,4 km
Alle voorzieningen in Vlashoek

Binnenkijken bij Burgemeester Ploegmakerslaan 11 te Oss

Meer meldingen in deze omgeving

112 melding
Donderdag 20-11-2025 om 16:54
Burgemeester Ploegmakerslaan, Oss

112 melding
Donderdag 20-11-2025 om 16:50
Burgemeester Ploegmakerslaan, Oss

Binnenkijken bij
Dinsdag 11-11-2025
Kromstraat 118B, 5345AE Oss

Binnenkijken bij
Dinsdag 11-11-2025
Kromstraat 116, 5345AE Oss

Binnenkijken bij
Dinsdag 11-11-2025
Heischouw 20, 5345XR Oss

Binnenkijken bij
Dinsdag 11-11-2025
Kromstraat 172, 5345AG Oss

Nieuw bedrijf
November 2025
Burgemeester Ploegmakerslaan 88, 5345VN Oss

Nieuw bedrijf
November 2025
Heischouw 62, 5345XS Oss

Direct een e-mail ontvangen bij nieuwe meldingen in deze regio?

Meld je dan GRATIS aan voor de Oozo Alert service voor Vlashoek

Instellen

Meer nieuws in Vlashoek

Weten hoe eenvoudig het is om af te vallen? Zonder pillen en smeersels en zonder je in het zweet te werken!
Kijk op eenvoudig-afvallen.nl

© 2012 - 2025 OOZO.nl - info@oozo.nl - Gegevens verwijderen? | Disclaimer | Privacy statement