Woning Hoefstraat 12 Oss

Hoefstraat 12, 5345AM Oss

Ontvang updates voor Vlashoek

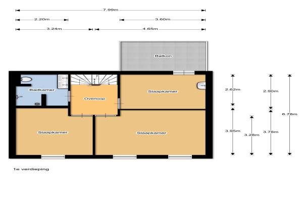
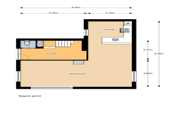
Het adres van deze woning is Hoefstraat 12 te Oss. Het pand heeft een oppervlakte van 130m² en een perceeloppervlakte van 364m² en heeft 4 kamers kamers waarvan 3 slaapkamers. De geschatte waarde van deze woning is € 389.000.

Bekijk alle woningen in Vlashoek

Gegevens van Eengezinswoning, vrijstaande woning

Geschatte waarde
€ 389.000
Oppervlakte
130 m2
Inhoud
422 m3
Aantal kamers
4 kamers
Slaapkamers
3
Badkamers
1 apart toilet
Soort bouw
Bestaande bouw
Eigendomssituatie
Volle eigendom
Ligging
Aan rustige weg en in woonwijk
Tuin
Achtertuin
Achtertuin
180 m² (15m diep en 12m breed)

Voorzieningen in de buurt

Boodschappen0,3 km
Grote supermarkt0,9 km
Cafetaria0,3 km
Restaurant0,5 km
Huisarts0,8 km
Ziekenhuis1,9 km
Kinderdagverblijf0,3 km
BSO0,4 km
Alle voorzieningen in Vlashoek

Binnenkijken bij Hoefstraat 12 te Oss

Meer meldingen in deze omgeving

Nieuw bedrijf
December 2025
Burgemeester Ploegmakerslaan 31, 5345VH Oss

Nieuw bedrijf
December 2025
Hertogin Johannasingel 16, 5345AJ Oss

Nieuw bedrijf
December 2025
Geurdenhof 97, 5345BA Oss

112 melding
Zondag 21-12-2025 om 15:20
Vlasgaard, 5345AV Oss

Binnenkijken bij
Zaterdag 13-12-2025
Verlengde Heischeutstraat 12, 5345WN Oss

Binnenkijken bij
Vrijdag 12-12-2025
Kromstraat 150, 5345AE Oss

Onroerend goed
Zaterdag 6-12-2025
Hertogin Johannasingel 36, 5345AJ Oss

Binnenkijken bij
Donderdag 4-12-2025
Vezelstraat 33, 5345XC Oss

Direct een e-mail ontvangen bij nieuwe meldingen in deze regio?

Meld je dan GRATIS aan voor de Oozo Alert service voor Vlashoek

Instellen

Meer nieuws in Vlashoek

Weten hoe eenvoudig het is om af te vallen? Zonder pillen en smeersels en zonder je in het zweet te werken!
Kijk op eenvoudig-afvallen.nl

© 2012 - 2025 OOZO.nl - info@oozo.nl - Gegevens verwijderen? | Disclaimer | Privacy statement