Woning Kromstraat 113 Oss

Kromstraat 113, 5345AB Oss

Ontvang updates voor Vlashoek

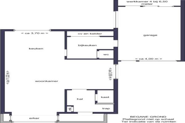
Het adres van deze woning uit 1964 is Kromstraat 113 te Oss. Het pand heeft een oppervlakte van 125m² en een perceeloppervlakte van 331m² en heeft 6 kamers kamers waarvan 3 slaapkamers. De geschatte waarde van deze woning is € 305.000.

Bekijk alle woningen in Vlashoek

Gegevens van Eengezinswoning, 2-onder-1-kapwoning

Bouwjaar
1964
Geschatte waarde
€ 305.000
Oppervlakte
125 m2
Inhoud
410 m3
Aantal kamers
6 kamers
Slaapkamers
3
Badkamers
1 badkamer
Soort bouw
Bestaande bouw
Eigendomssituatie
Volle eigendom
Ligging
In woonwijk
Tuin
Achtertuin en voortuin
Achtertuin
94 m² (12,5m diep en 7,5m breed)

Voorzieningen in de buurt

Boodschappen0,3 km
Grote supermarkt0,9 km
Cafetaria0,3 km
Restaurant0,5 km
Huisarts0,8 km
Ziekenhuis1,9 km
Kinderdagverblijf0,3 km
BSO0,4 km
Alle voorzieningen in Vlashoek

Binnenkijken bij Kromstraat 113 te Oss

Meer meldingen in deze omgeving

Binnenkijken bij
Woensdag 7-1-2026
Heischouw 16, 5345XR Oss

Binnenkijken bij
Dinsdag 6-1-2026
Zwingelstraat 31, 5345XE Oss

Nieuw bedrijf
Januari 2026
Braakstraat 95, 5345WX Oss

Nieuw bedrijf
Januari 2026
Burgemeester Ploegmakerslaan 31, 5345VH Oss

Binnenkijken bij
Dinsdag 30-12-2025
Geurdenhof 75, 5345BA Oss

Nieuw bedrijf
December 2025
Zwingelstraat 15, 5345XE Oss

Nieuw bedrijf
December 2025
Hertogin Johannasingel 16, 5345AJ Oss

Nieuw bedrijf
December 2025
Geurdenhof 97, 5345BA Oss

Direct een e-mail ontvangen bij nieuwe meldingen in deze regio?

Meld je dan GRATIS aan voor de Oozo Alert service voor Vlashoek

Instellen

Meer nieuws in Vlashoek

Weten hoe eenvoudig het is om af te vallen? Zonder pillen en smeersels en zonder je in het zweet te werken!
Kijk op eenvoudig-afvallen.nl

© 2012 - 2026 OOZO.nl - info@oozo.nl - Gegevens verwijderen? | Disclaimer | Privacy statement