Woning Koningspage 17 Oss

Koningspage 17, 5345EE Oss

Ontvang updates voor Westerveld

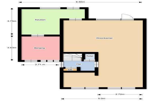
Het adres van deze woning uit 1985 is Koningspage 17 te Oss. Het pand heeft een oppervlakte van 97m² en een perceeloppervlakte van 207m² en heeft 5 kamers kamers waarvan 4 slaapkamers. De geschatte waarde van deze woning is € 249.000.

Bekijk alle woningen in Westerveld

Gegevens van Eengezinswoning, 2-onder-1-kapwoning

Bouwjaar
1985
Geschatte waarde
€ 249.000
Oppervlakte
97 m2
Inhoud
375 m3
Aantal kamers
5 kamers
Slaapkamers
4
Soort bouw
Bestaande bouw
Eigendomssituatie
Volle eigendom
Ligging
In woonwijk
Tuin
Achtertuin en voortuin
Achtertuin
56 m² (7m diep en 8m breed)

Voorzieningen in de buurt

Boodschappen0,8 km
Grote supermarkt0,9 km
Cafetaria0,9 km
Restaurant0,9 km
Huisarts1,2 km
Ziekenhuis2,9 km
Kinderdagverblijf0,6 km
BSO0,5 km
Alle voorzieningen in Westerveld

Binnenkijken bij Koningspage 17 te Oss

Meer meldingen in deze omgeving

Binnenkijken bij
Vrijdag 21-11-2025
Oranjetip 12, 5345EP Oss

Binnenkijken bij
Vrijdag 14-11-2025
Atalantastraat 53, 5345GN Oss

Binnenkijken bij
Donderdag 30-10-2025
Vuurvlinder 9, 5345EW Oss

Faillissement
Dinsdag 21-10-2025
Vlinderhof 5, 5345JX OSS

Nieuw bedrijf
Oktober 2025
Wapendrager 15, 5345EZ Oss

Nieuw bedrijf
Oktober 2025
Wapendrager 15, 5345EZ Oss

112 melding
Maandag 6-10-2025 om 23:47
Atalantastraat, 5345GN Oss

112 melding
Maandag 6-10-2025 om 23:43
Atalantastraat, 5345GN Oss

Direct een e-mail ontvangen bij nieuwe meldingen in deze regio?

Meld je dan GRATIS aan voor de Oozo Alert service voor Westerveld

Instellen

Meer nieuws in Westerveld

Weten hoe eenvoudig het is om af te vallen? Zonder pillen en smeersels en zonder je in het zweet te werken!
Kijk op eenvoudig-afvallen.nl

© 2012 - 2025 OOZO.nl - info@oozo.nl - Gegevens verwijderen? | Disclaimer | Privacy statement