Woning Wielsingel 29 Oud-Beijerland

Wielsingel 29, 3261VH Oud-Beijerland

Ontvang updates voor Oosterse Gorzenwijk

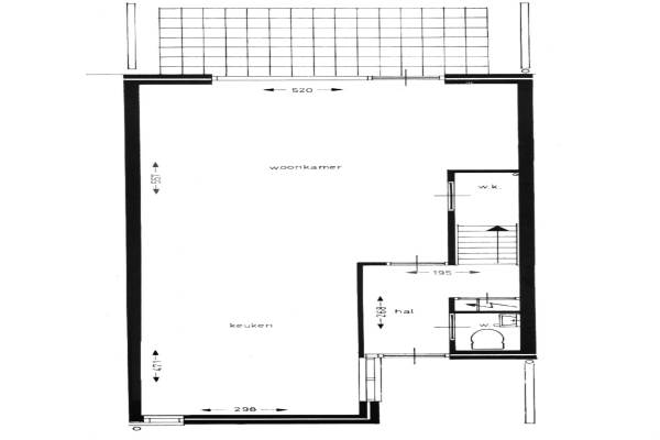
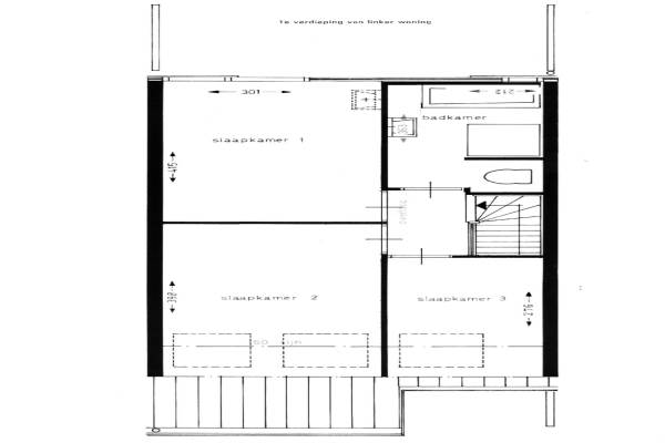
Het adres van deze woning uit 1976 is Wielsingel 29 te Oud-Beijerland. Het pand heeft een oppervlakte van 109m² en een perceeloppervlakte van 149m² en heeft 5 kamers kamers waarvan 4 slaapkamers. De geschatte waarde van deze woning is € 250.000.

Bekijk alle woningen in Oosterse Gorzenwijk

Gegevens van Eengezinswoning, tussenwoning

Bouwjaar
1976
Geschatte waarde
€ 250.000
Oppervlakte
109 m2
Inhoud
350 m3
Aantal kamers
5 kamers
Slaapkamers
4
Badkamers
1 badkamer en 1 apart toilet
Soort bouw
Bestaande bouw
Eigendomssituatie
Volle eigendom
Ligging
Aan rustige weg en in woonwijk
Tuin
Achtertuin en voortuin
Achtertuin
56 m² (10,5m diep en 5,3m breed)

Voorzieningen in de buurt

Binnenkijken bij Wielsingel 29 te Oud-Beijerland

Meer meldingen in deze omgeving

112 melding
Maandag 26-1-2026 om 10:57
Bosschenhoek, 3261TB Oud-Beijerland

112 melding
Zondag 25-1-2026 om 16:20
Bosschenhoek, Oud-Beijerland

112 melding
Zondag 25-1-2026 om 16:20
Bosschenhoek, Oud-Beijerland

112 melding
Zaterdag 24-1-2026 om 23:48
Burgemeester De Vries Broekmanlaan, 3261EC Oud-Beijerland

112 melding
Zaterdag 24-1-2026 om 23:47
Burgemeester De Vries Broekmanlaan, 3261EC Oud-Beijerland

Binnenkijken bij
Vrijdag 23-1-2026
Ravenswey 42, 3261VB Oud-Beijerland

Nieuw bedrijf
Januari 2026
Burg. Diepenhorstsingel 29, 3261ED Oud-Beijerland

112 melding
Dinsdag 20-1-2026 om 11:17
Burgemeester De Vries Broekmanlaan, 3261EC Oud-Beijerland

Direct een e-mail ontvangen bij nieuwe meldingen in deze regio?

Meld je dan GRATIS aan voor de Oozo Alert service voor Oosterse Gorzenwijk

Instellen

Meer nieuws in Oosterse Gorzenwijk

Weten hoe eenvoudig het is om af te vallen? Zonder pillen en smeersels en zonder je in het zweet te werken!
Kijk op eenvoudig-afvallen.nl

© 2012 - 2026 OOZO.nl - info@oozo.nl - Gegevens verwijderen? | Disclaimer | Privacy statement