Woning Klipper 62 Oud-Beijerland

Klipper 62, 3263NB Oud-Beijerland

Ontvang updates voor Zoomwijck

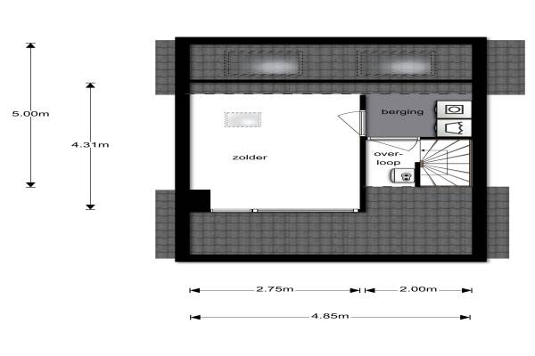
Het adres van deze woning uit 1981 is Klipper 62 te Oud-Beijerland. Het pand heeft een oppervlakte van 97m² en een perceeloppervlakte van 146m² en heeft 5 kamers kamers waarvan 4 slaapkamers. De geschatte waarde van deze woning is € 210.000.

Bekijk alle woningen in Zoomwijck

Gegevens van Eengezinswoning, hoekwoning

Bouwjaar
1981
Geschatte waarde
€ 210.000
Oppervlakte
97 m2
Inhoud
300 m3
Aantal kamers
5 kamers
Slaapkamers
4
Badkamers
1 apart toilet
Soort bouw
Bestaande bouw
Eigendomssituatie
Volle eigendom
Tuin
Achtertuin en voortuin
Achtertuin
60 m² (10m diep en 6m breed)

Voorzieningen in de buurt

Binnenkijken bij Klipper 62 te Oud-Beijerland

Meer meldingen in deze omgeving

112 melding
Dinsdag 14-10-2025 om 09:51
Fuut, 3263AB Oud-Beijerland

112 melding
Maandag 13-10-2025 om 16:12
Waterhoen, 3263BL Oud-Beijerland

112 melding
Maandag 13-10-2025 om 16:12
Waterhoen, 3263BL Oud-Beijerland

112 melding
Maandag 13-10-2025 om 16:12
Waterhoen, 3263BL Oud-Beijerland

112 melding
Maandag 13-10-2025 om 16:09
Zoomwijcklaan, 3262CM Oud-Beijerland

112 melding
Maandag 13-10-2025 om 16:09
Zoomwijcklaan, 3262CM Oud-Beijerland

112 melding
Maandag 13-10-2025 om 15:16
Waterhoen, 3263BM Oud-Beijerland

112 melding
Maandag 13-10-2025 om 14:47
Kievit, 3263BD Oud-Beijerland

Direct een e-mail ontvangen bij nieuwe meldingen in deze regio?

Meld je dan GRATIS aan voor de Oozo Alert service voor Zoomwijck

Instellen

Meer nieuws in Zoomwijck

Weten hoe eenvoudig het is om af te vallen? Zonder pillen en smeersels en zonder je in het zweet te werken!
Kijk op eenvoudig-afvallen.nl

© 2012 - 2025 OOZO.nl - info@oozo.nl - Gegevens verwijderen? | Disclaimer | Privacy statement