Woning Helen Parkhurstweg 13 Oud-Beijerland

Helen Parkhurstweg 13, 3263RK Oud-Beijerland

Ontvang updates voor Zoomwijck

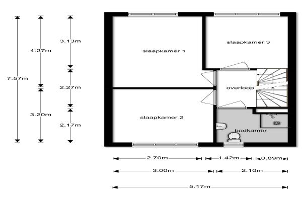
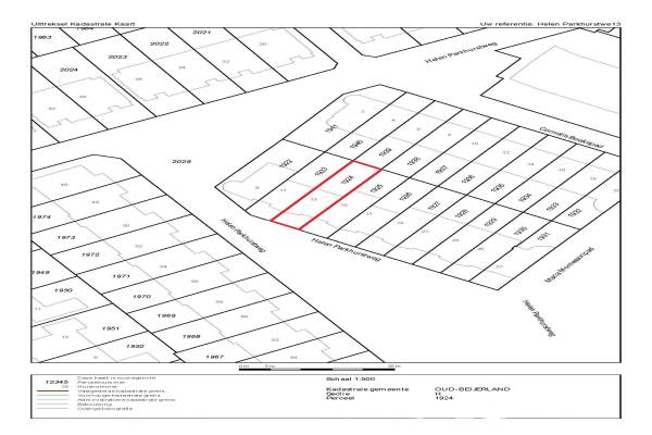
Het adres van deze woning uit 1993 is Helen Parkhurstweg 13 te Oud-Beijerland. Het pand heeft een oppervlakte van 101m² en een perceeloppervlakte van 132m² en heeft 5 kamers kamers waarvan 4 slaapkamers. De geschatte waarde van deze woning is € 219.500.

Bekijk alle woningen in Zoomwijck

Gegevens van Eengezinswoning, tussenwoning

Bouwjaar
1993
Geschatte waarde
€ 219.500
Oppervlakte
101 m2
Inhoud
311 m3
Aantal kamers
5 kamers
Slaapkamers
4
Badkamers
1 badkamer en 1 apart toilet
Soort bouw
Bestaande bouw
Eigendomssituatie
Volle eigendom
Ligging
Aan rustige weg, in woonwijk en beschutte ligging
Tuin
Achtertuin en voortuin
Achtertuin
57 m² (10,73m diep en 5,33m breed)

Voorzieningen in de buurt

Binnenkijken bij Helen Parkhurstweg 13 te Oud-Beijerland

Meer meldingen in deze omgeving

112 melding
Maandag 13-10-2025 om 16:12
Waterhoen, 3263BL Oud-Beijerland

112 melding
Maandag 13-10-2025 om 16:12
Waterhoen, 3263BL Oud-Beijerland

112 melding
Maandag 13-10-2025 om 16:09
Zoomwijcklaan, 3262CM Oud-Beijerland

112 melding
Maandag 13-10-2025 om 15:16
Waterhoen, 3263BM Oud-Beijerland

112 melding
Maandag 13-10-2025 om 14:47
Kievit, 3263BD Oud-Beijerland

112 melding
Maandag 13-10-2025 om 14:12
Griendwerker, 3263CB Oud-Beijerland

112 melding
Maandag 13-10-2025 om 14:12
Griendwerker, 3263CB Oud-Beijerland

112 melding
Maandag 13-10-2025 om 13:41
Tjalk, 3263PE Oud-Beijerland

Direct een e-mail ontvangen bij nieuwe meldingen in deze regio?

Meld je dan GRATIS aan voor de Oozo Alert service voor Zoomwijck

Instellen

Meer nieuws in Zoomwijck

Weten hoe eenvoudig het is om af te vallen? Zonder pillen en smeersels en zonder je in het zweet te werken!
Kijk op eenvoudig-afvallen.nl

© 2012 - 2025 OOZO.nl - info@oozo.nl - Gegevens verwijderen? | Disclaimer | Privacy statement