Woning Pieter de Hooghlaan 18 Oud-Beijerland

Pieter de Hooghlaan 18, 3262RE Oud-Beijerland

Ontvang updates voor Zuidwijk

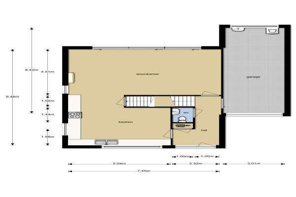
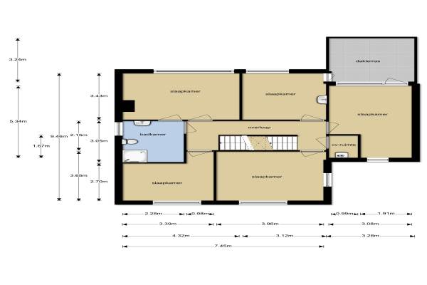
Het adres van deze woning uit 1977 is Pieter de Hooghlaan 18 te Oud-Beijerland. Het pand heeft een oppervlakte van 197m² en een perceeloppervlakte van 428m² en heeft 7 kamers kamers waarvan 6 slaapkamers. De geschatte waarde van deze woning is € 445.000.

Bekijk alle woningen in Zuidwijk

Gegevens van Eengezinswoning, halfvrijstaande woning

Bouwjaar
1977
Geschatte waarde
€ 445.000
Oppervlakte
197 m2
Inhoud
764 m3
Aantal kamers
7 kamers
Slaapkamers
6
Badkamers
1 apart toilet
Soort bouw
Bestaande bouw
Eigendomssituatie
Volle eigendom
Ligging
Aan water, aan park en aan rustige weg
Tuin
Achtertuin en voortuin
Achtertuin
188 m² (15m diep en 12,5m breed)

Voorzieningen in de buurt

Binnenkijken bij Pieter de Hooghlaan 18 te Oud-Beijerland

Meer meldingen in deze omgeving

Nieuw bedrijf
December 2025
Ferdinand Bolstraat 10, 3262RA Oud-Beijerland

112 melding
Dinsdag 2-12-2025 om 23:37
Jeroen Boschstraat, 3262HH Oud-Beijerland

112 melding
Dinsdag 2-12-2025 om 17:19
Rembrandtplein, 3262HW Oud-Beijerland

112 melding
Dinsdag 2-12-2025 om 14:45
Jan Tooropstraat, 3262TE Oud-Beijerland

112 melding
Maandag 1-12-2025 om 20:37
Pieter de Hooghlaan, 3262RE Oud-Beijerland

112 melding
Maandag 1-12-2025 om 12:41
Frans Halsstraat, Oud-Beijerland

112 melding
Maandag 1-12-2025 om 09:28
van Goyenstraat, Oud-Beijerland

112 melding
Zondag 30-11-2025 om 23:05
Israëlsdreef, 3262NA Oud-Beijerland

Direct een e-mail ontvangen bij nieuwe meldingen in deze regio?

Meld je dan GRATIS aan voor de Oozo Alert service voor Zuidwijk

Instellen

Meer nieuws in Zuidwijk

Weten hoe eenvoudig het is om af te vallen? Zonder pillen en smeersels en zonder je in het zweet te werken!
Kijk op eenvoudig-afvallen.nl

© 2012 - 2025 OOZO.nl - info@oozo.nl - Gegevens verwijderen? | Disclaimer | Privacy statement