Woning Grebbestraat 13 Oud-Beijerland

Grebbestraat 13, 3262GD Oud-Beijerland

Ontvang updates voor Zuidwijk

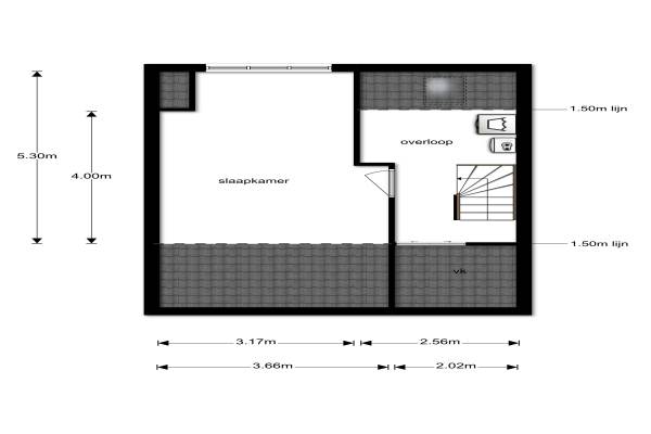
Het adres van deze woning uit 1970 is Grebbestraat 13 te Oud-Beijerland. Het pand heeft een oppervlakte van 117m² en een perceeloppervlakte van 149m² en heeft 5 kamers kamers waarvan 4 slaapkamers. De geschatte waarde van deze woning is € 239.000.

Bekijk alle woningen in Zuidwijk

Gegevens van Eengezinswoning, tussenwoning

Bouwjaar
1970
Geschatte waarde
€ 239.000
Oppervlakte
117 m2
Inhoud
375 m3
Aantal kamers
5 kamers
Slaapkamers
4
Badkamers
1 badkamer en 1 apart toilet
Soort bouw
Bestaande bouw
Eigendomssituatie
Volle eigendom
Ligging
Aan rustige weg en in woonwijk
Tuin
Achtertuin en voortuin
Achtertuin
69 m² (11,5m diep en 6m breed)

Voorzieningen in de buurt

Binnenkijken bij Grebbestraat 13 te Oud-Beijerland

Meer meldingen in deze omgeving

112 melding
Dinsdag 4-11-2025 om 16:44
Paulus Pottersingel, 3262VH Oud-Beijerland

112 melding
Dinsdag 4-11-2025 om 16:18
W. van Vlietstraat, 3262GM Oud-Beijerland

112 melding
Dinsdag 4-11-2025 om 16:18
W. van Vlietstraat, 3262GM Oud-Beijerland

112 melding
Dinsdag 4-11-2025 om 16:18
W. van Vlietstraat, 3262GM Oud-Beijerland

112 melding
Dinsdag 4-11-2025 om 16:18
W. van Vlietstraat, 3262GM Oud-Beijerland

112 melding
Dinsdag 4-11-2025 om 16:18
W. van Vlietstraat, 3262GM Oud-Beijerland

112 melding
Dinsdag 4-11-2025 om 16:18
W. van Vlietstraat, 3262GM Oud-Beijerland

112 melding
Dinsdag 4-11-2025 om 16:18
W. van Vlietstraat, 3262GM Oud-Beijerland

Direct een e-mail ontvangen bij nieuwe meldingen in deze regio?

Meld je dan GRATIS aan voor de Oozo Alert service voor Zuidwijk

Instellen

Meer nieuws in Zuidwijk

Weten hoe eenvoudig het is om af te vallen? Zonder pillen en smeersels en zonder je in het zweet te werken!
Kijk op eenvoudig-afvallen.nl

© 2012 - 2025 OOZO.nl - info@oozo.nl - Gegevens verwijderen? | Disclaimer | Privacy statement