Woning Frans Halsstraat 22 Oud-Beijerland

Frans Halsstraat 22, 3262HG Oud-Beijerland

Ontvang updates voor Zuidwijk

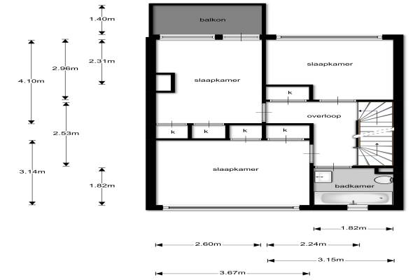
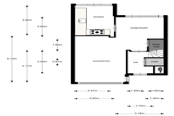
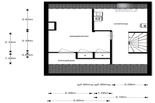
Het adres van deze woning uit 1972 is Frans Halsstraat 22 te Oud-Beijerland. Het pand heeft een oppervlakte van 123m² en een perceeloppervlakte van 160m² en heeft 5 kamers kamers waarvan 4 slaapkamers. De geschatte waarde van deze woning is € 250.000.

Bekijk alle woningen in Zuidwijk

Gegevens van Eengezinswoning, tussenwoning

Bouwjaar
1972
Geschatte waarde
€ 250.000
Oppervlakte
123 m2
Inhoud
380 m3
Aantal kamers
5 kamers
Slaapkamers
4
Badkamers
1 badkamer en 1 apart toilet
Soort bouw
Bestaande bouw
Eigendomssituatie
Volle eigendom
Ligging
Aan rustige weg en in woonwijk
Tuin
Achtertuin en voortuin
Achtertuin
47 m² (7,75m diep en 6m breed)

Voorzieningen in de buurt

Binnenkijken bij Frans Halsstraat 22 te Oud-Beijerland

Meer meldingen in deze omgeving

Binnenkijken bij
Vrijdag 21-11-2025
Waalhavenstraat 28, 3262GP Oud-Beijerland

Binnenkijken bij
Vrijdag 21-11-2025
Waalhavenstraat 18, 3262GP Oud-Beijerland

Nieuw bedrijf
November 2025
A.W. Lipsstraat 3, 3262GA Oud-Beijerland

Nieuw bedrijf
November 2025
M. Oosteromstraat 11, 3262GH Oud-Beijerland

Nieuw bedrijf
November 2025
Govert Flinckstraat 25, 3262TD Oud-Beijerland

112 melding
Donderdag 20-11-2025 om 15:34
van Ostadestraat, Oud-Beijerland

112 melding
Donderdag 20-11-2025 om 15:32
Paulus Pottersingel, 3262VH Oud-Beijerland

112 melding
Donderdag 20-11-2025 om 12:10
Rembrandtplein, 3262HW Oud-Beijerland

Direct een e-mail ontvangen bij nieuwe meldingen in deze regio?

Meld je dan GRATIS aan voor de Oozo Alert service voor Zuidwijk

Instellen

Meer nieuws in Zuidwijk

Weten hoe eenvoudig het is om af te vallen? Zonder pillen en smeersels en zonder je in het zweet te werken!
Kijk op eenvoudig-afvallen.nl

© 2012 - 2025 OOZO.nl - info@oozo.nl - Gegevens verwijderen? | Disclaimer | Privacy statement