Woning Michaëlplein 92 Duivendrecht

Michaëlplein 92, 1115CM Duivendrecht

Ontvang updates voor Duivendrecht

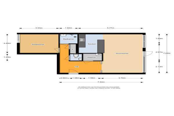
Het adres van deze woning is Michaëlplein 92 te Duivendrecht. Het pand heeft een oppervlakte van 65m² en heeft 2 kamers kamers waarvan 1 slaapkamers. De geschatte waarde van deze woning is € 210.000.

Bekijk alle woningen in Duivendrecht

Gegevens van Benedenwoning (appartement)

Geschatte waarde
€ 210.000
Oppervlakte
65 m2
Inhoud
210 m3
Aantal kamers
2 kamers
Slaapkamers
1
Badkamers
1 badkamer en 1 apart toilet
Soort bouw
Bestaande bouw
Eigendomssituatie
Volle eigendom
Ligging
Aan rustige weg en in woonwijk
Tuin
Achtertuin
Achtertuin
3 m² (2m diep en 1,5m breed)

Voorzieningen in de buurt

Boodschappen0,5 km
Grote supermarkt0,5 km
Cafetaria0,5 km
Restaurant0,4 km
Huisarts0,7 km
Ziekenhuis4,6 km
Kinderdagverblijf0,7 km
BSO0,5 km
Alle voorzieningen in Duivendrecht

Binnenkijken bij Michaëlplein 92 te Duivendrecht

Meer meldingen in deze omgeving

112 melding
Woensdag 31-12-2025 om 14:55
Rijksstraatweg, Duivendrecht

112 melding
Woensdag 31-12-2025 om 08:26
Astronautenweg, 1115VV Duivendrecht

Nieuw bedrijf
December 2025
Parnassiaveld 160, 1115EN Duivendrecht

Nieuw bedrijf
December 2025
Joop Geesinkweg 601, 1114AB Amsterdam-Duivendrecht

Nieuw bedrijf
December 2025
Joop Geesinkweg 601, 1114AB Amsterdam-Duivendrecht

Nieuw bedrijf
December 2025
Joop Geesinkweg 901, 1114AB Amsterdam-Duivendrecht

Nieuw bedrijf
December 2025
In de Houtzaagmolen 59, 1115GG Duivendrecht

Nieuw bedrijf
December 2025
Joop Geesinkweg 601, 1114AB Amsterdam-Duivendrecht

Direct een e-mail ontvangen bij nieuwe meldingen in deze regio?

Meld je dan GRATIS aan voor de Oozo Alert service voor Duivendrecht

Instellen

Meer nieuws in Duivendrecht

Weten hoe eenvoudig het is om af te vallen? Zonder pillen en smeersels en zonder je in het zweet te werken!
Kijk op eenvoudig-afvallen.nl

© 2012 - 2026 OOZO.nl - info@oozo.nl - Gegevens verwijderen? | Disclaimer | Privacy statement