Woning Solidus 45 Elst

Solidus 45, 6661TB Elst

Ontvang updates voor Elst-Noordoost

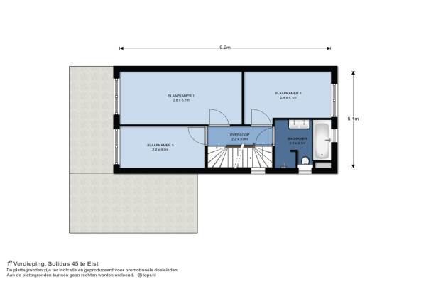
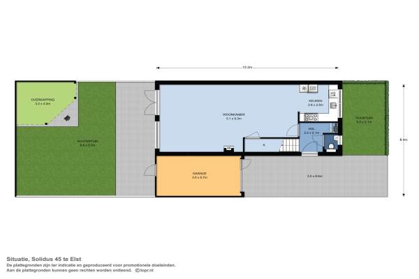
Het adres van deze woning uit 2006 is Solidus 45 te Elst. Het pand heeft een oppervlakte van 142m² en een perceeloppervlakte van 218m² en heeft 6 kamers kamers waarvan 5 slaapkamers. De geschatte waarde van deze woning is € 355.000.

Bekijk alle woningen in Elst-Noordoost

Gegevens van Eengezinswoning, geschakelde 2-onder-1-kapwoning

Bouwjaar
2006
Geschatte waarde
€ 355.000
Oppervlakte
142 m2
Inhoud
611 m3
Aantal kamers
6 kamers
Slaapkamers
5
Badkamers
1 badkamer en 1 apart toilet
Soort bouw
Bestaande bouw
Eigendomssituatie
Volle eigendom
Ligging
Aan rustige weg en in woonwijk
Tuin
Achtertuin en voortuin
Achtertuin
78 m² (9,4m diep en 8,3m breed)

Voorzieningen in de buurt

Boodschappen1,1 km
Grote supermarkt0,7 km
Cafetaria0,5 km
Restaurant0,8 km
Huisarts0,7 km
Ziekenhuis5,1 km
Kinderdagverblijf0,5 km
BSO0,5 km
Alle voorzieningen in Elst-Noordoost

Binnenkijken bij Solidus 45 te Elst

Meer meldingen in deze omgeving

112 melding
Dinsdag 17-2-2026 om 08:43
Ochtendnevel, 6661RD Elst

112 melding
Dinsdag 17-2-2026 om 08:43
Ochtendnevel, 6661RD Elst

112 melding
Maandag 16-2-2026 om 13:35
Oude Aamsestraat, 6662AA Elst

112 melding
Maandag 16-2-2026 om 13:33
Sneeuwvlok, 6661RB Elst

112 melding
Zondag 15-2-2026 om 06:09
Denarius, 6661SX Elst

112 melding
Vrijdag 13-2-2026 om 14:44
De Helster, 6661AH Elst

112 melding
Vrijdag 13-2-2026 om 13:28
Horizon, Elst

112 melding
Vrijdag 13-2-2026 om 11:08
Sneeuwvlok, 6661RB Elst

Direct een e-mail ontvangen bij nieuwe meldingen in deze regio?

Meld je dan GRATIS aan voor de Oozo Alert service voor Elst-Noordoost

Instellen

Meer nieuws in Elst-Noordoost

Weten hoe eenvoudig het is om af te vallen? Zonder pillen en smeersels en zonder je in het zweet te werken!
Kijk op eenvoudig-afvallen.nl

© 2012 - 2026 OOZO.nl - info@oozo.nl - Gegevens verwijderen? | Disclaimer | Privacy statement