Woning Regenboog 187 Elst

Regenboog 187, 6661PN Elst

Ontvang updates voor Elst-Noordoost

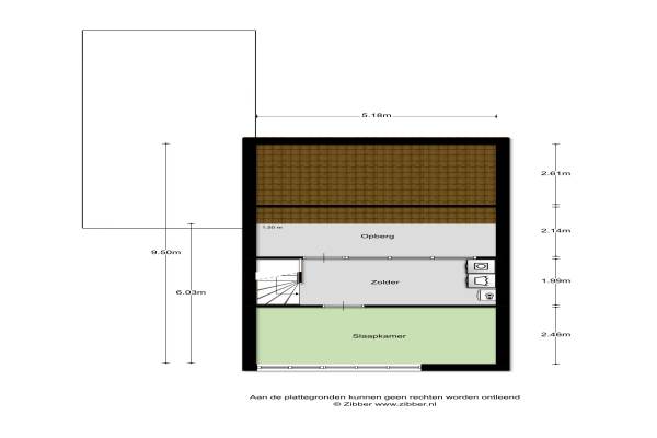
Het adres van deze woning uit 2003 is Regenboog 187 te Elst. Het pand heeft een oppervlakte van 130m² en een perceeloppervlakte van 334m² en heeft 4 kamers kamers waarvan 3 slaapkamers. De geschatte waarde van deze woning is € 365.000.

Bekijk alle woningen in Elst-Noordoost

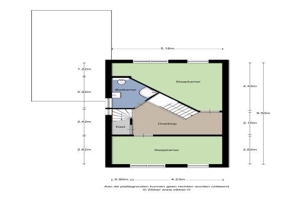
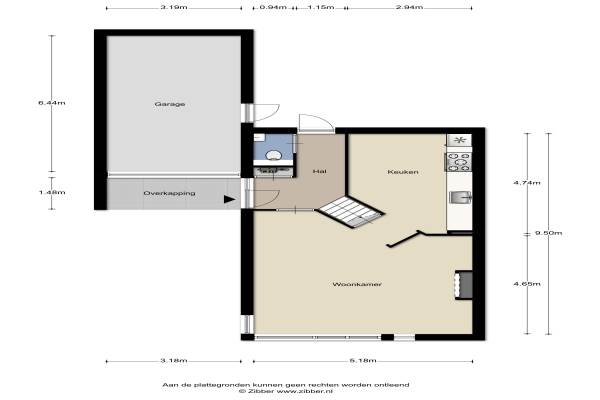
Gegevens van Eengezinswoning, geschakelde 2-onder-1-kapwoning

Bouwjaar
2003
Geschatte waarde
€ 365.000
Oppervlakte
130 m2
Inhoud
556 m3
Aantal kamers
4 kamers
Slaapkamers
3
Badkamers
1 badkamer en 1 apart toilet
Soort bouw
Bestaande bouw
Eigendomssituatie
Volle eigendom
Ligging
In woonwijk en vrij uitzicht
Tuin
Achtertuin, voortuin en zijtuin
Achtertuin
180 m² (20m diep en 9m breed)

Voorzieningen in de buurt

Boodschappen1,1 km
Grote supermarkt0,7 km
Cafetaria0,5 km
Restaurant0,8 km
Huisarts0,7 km
Ziekenhuis5,1 km
Kinderdagverblijf0,5 km
BSO0,5 km
Alle voorzieningen in Elst-Noordoost

Binnenkijken bij Regenboog 187 te Elst

Meer meldingen in deze omgeving

112 melding
Vrijdag 23-1-2026 om 11:11
Rijksweg-Noord, 6661KD Elst

112 melding
Vrijdag 23-1-2026 om 10:52
Griegstraat, 6661CB Elst

112 melding
Donderdag 22-1-2026 om 23:13
Limes, 6661JM Elst

112 melding
Donderdag 22-1-2026 om 22:19
Buurmeester, 6661MB Elst

112 melding
Donderdag 22-1-2026 om 22:19
Buurmeester, 6661MB Elst

112 melding
Donderdag 22-1-2026 om 17:00
Schubertstraat, 6661AW Elst

112 melding
Donderdag 22-1-2026 om 17:00
Schubertstraat, 6661AW Elst

112 melding
Donderdag 22-1-2026 om 15:50
Sint Maartenstraat, 6661DA Elst

Direct een e-mail ontvangen bij nieuwe meldingen in deze regio?

Meld je dan GRATIS aan voor de Oozo Alert service voor Elst-Noordoost

Instellen

Meer nieuws in Elst-Noordoost

Weten hoe eenvoudig het is om af te vallen? Zonder pillen en smeersels en zonder je in het zweet te werken!
Kijk op eenvoudig-afvallen.nl

© 2012 - 2026 OOZO.nl - info@oozo.nl - Gegevens verwijderen? | Disclaimer | Privacy statement