Woning Aurelius 10 Elst

Aurelius 10, 6661JT Elst

Ontvang updates voor Elst-Noordoost

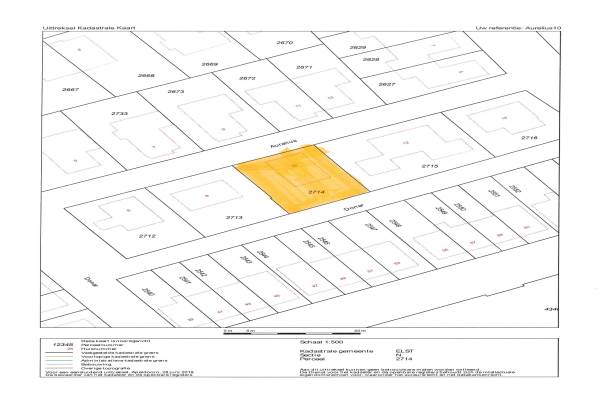
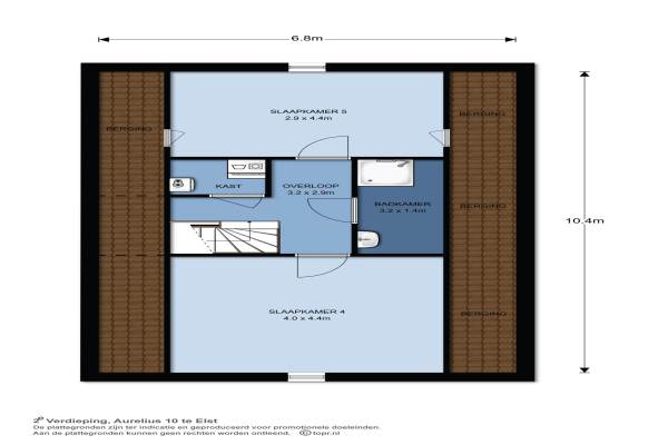
Het adres van deze woning uit 2007 is Aurelius 10 te Elst. Het pand heeft een oppervlakte van 186m² en een perceeloppervlakte van 360m² en heeft 6 kamers kamers waarvan 5 slaapkamers. De geschatte waarde van deze woning is € 550.000.

Bekijk alle woningen in Elst-Noordoost

Gegevens van Herenhuis, vrijstaande woning

Bouwjaar
2007
Geschatte waarde
€ 550.000
Oppervlakte
186 m2
Inhoud
671 m3
Aantal kamers
6 kamers
Slaapkamers
5
Badkamers
1 badkamer en 2 aparte toiletten
Soort bouw
Bestaande bouw
Eigendomssituatie
Volle eigendom
Ligging
Aan rustige weg en in woonwijk
Tuin
Achtertuin, voortuin en zijtuin
Achtertuin
150 m² (17,1m diep en 8,8m breed)

Voorzieningen in de buurt

Boodschappen1,1 km
Grote supermarkt0,7 km
Cafetaria0,5 km
Restaurant0,8 km
Huisarts0,7 km
Ziekenhuis5,1 km
Kinderdagverblijf0,5 km
BSO0,5 km
Alle voorzieningen in Elst-Noordoost

Binnenkijken bij Aurelius 10 te Elst

Meer meldingen in deze omgeving

112 melding
Vrijdag 28-11-2025 om 13:34
Haydnstraat, 6661BV Elst

112 melding
Vrijdag 28-11-2025 om 10:41
Avondster, 6661PR Elst

Binnenkijken bij
Vrijdag 28-11-2025
Pijlkruid 12, 6661LW Elst (GE)

Nieuw bedrijf
November 2025
Regenboog 171, 6661PN Elst

Nieuw bedrijf
November 2025
Buurmeester 20, 6661MB Elst

112 melding
Donderdag 27-11-2025 om 16:58
Mozartstraat, 6661CJ Elst

112 melding
Donderdag 27-11-2025 om 14:54
Haydnstraat, Elst

112 melding
Woensdag 26-11-2025 om 21:36
Sint Maartenstraat, Elst

Direct een e-mail ontvangen bij nieuwe meldingen in deze regio?

Meld je dan GRATIS aan voor de Oozo Alert service voor Elst-Noordoost

Instellen

Meer nieuws in Elst-Noordoost

Weten hoe eenvoudig het is om af te vallen? Zonder pillen en smeersels en zonder je in het zweet te werken!
Kijk op eenvoudig-afvallen.nl

© 2012 - 2025 OOZO.nl - info@oozo.nl - Gegevens verwijderen? | Disclaimer | Privacy statement