Woning Mozartstraat 53 Elst

Mozartstraat 53, 6661BH Elst

Ontvang updates voor Elst-Noordoost

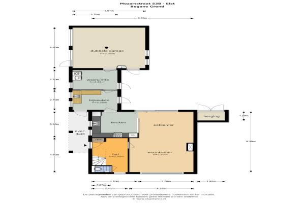
Het adres van deze woning uit 1985 is Mozartstraat 53 te Elst. Het pand heeft een oppervlakte van 152m² en een perceeloppervlakte van 406m² en heeft 4 kamers kamers waarvan 3 slaapkamers. De geschatte waarde van deze woning is € 485.000.

Bekijk alle woningen in Elst-Noordoost

Gegevens van Eengezinswoning, vrijstaande woning

Bouwjaar
1985
Geschatte waarde
€ 485.000
Oppervlakte
152 m2
Inhoud
634 m3
Aantal kamers
4 kamers
Slaapkamers
3
Badkamers
1 badkamer en 2 aparte toiletten
Soort bouw
Bestaande bouw
Eigendomssituatie
Volle eigendom
Ligging
Aan rustige weg en in woonwijk
Tuin
Achtertuin en voortuin
Achtertuin
61 m² (11m diep en 5,5m breed)

Voorzieningen in de buurt

Boodschappen1,1 km
Grote supermarkt0,7 km
Cafetaria0,5 km
Restaurant0,8 km
Huisarts0,7 km
Ziekenhuis5,1 km
Kinderdagverblijf0,5 km
BSO0,5 km
Alle voorzieningen in Elst-Noordoost

Binnenkijken bij Mozartstraat 53 te Elst

Meer meldingen in deze omgeving

Nieuw bedrijf
Oktober 2025
Meiregen 46, 6661PE Elst

Nieuw bedrijf
Oktober 2025
Beethovenstraat 18, 6661CG Elst

Nieuw bedrijf
Oktober 2025
Sluiswachter 19, 6661MV Elst

112 melding
Woensdag 15-10-2025 om 14:23
Schubertstraat, 6661AW Elst

112 melding
Woensdag 15-10-2025 om 13:30
Mozartstraat, 6661BJ Elst

112 melding
Woensdag 15-10-2025 om 11:26
Fonteinkruid, 6661LH Elst

112 melding
Dinsdag 14-10-2025 om 19:23
Mozartstraat, 6661BJ Elst

112 melding
Dinsdag 14-10-2025 om 19:23
Mozartstraat, 6661BJ Elst

Direct een e-mail ontvangen bij nieuwe meldingen in deze regio?

Meld je dan GRATIS aan voor de Oozo Alert service voor Elst-Noordoost

Instellen

Meer nieuws in Elst-Noordoost

Weten hoe eenvoudig het is om af te vallen? Zonder pillen en smeersels en zonder je in het zweet te werken!
Kijk op eenvoudig-afvallen.nl

© 2012 - 2025 OOZO.nl - info@oozo.nl - Gegevens verwijderen? | Disclaimer | Privacy statement