Woning Regenboog 183 Elst

Regenboog 183, 6661PN Elst

Ontvang updates voor Elst-Noordoost

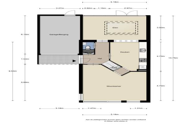
Het adres van deze woning uit 2003 is Regenboog 183 te Elst. Het pand heeft een oppervlakte van 144m² en een perceeloppervlakte van 334m² en heeft 4 kamers kamers waarvan 3 slaapkamers. De geschatte waarde van deze woning is € 375.000.

Bekijk alle woningen in Elst-Noordoost

Gegevens van Eengezinswoning, 2-onder-1-kapwoning

Bouwjaar
2003
Geschatte waarde
€ 375.000
Oppervlakte
144 m2
Inhoud
560 m3
Aantal kamers
4 kamers
Slaapkamers
3
Badkamers
1 badkamer en 1 apart toilet
Soort bouw
Bestaande bouw
Eigendomssituatie
Volle eigendom
Ligging
Aan rustige weg, in woonwijk en vrij uitzicht
Tuin
Achtertuin en voortuin
Achtertuin
144 m² (16m diep en 9m breed)

Voorzieningen in de buurt

Boodschappen1,1 km
Grote supermarkt0,7 km
Cafetaria0,5 km
Restaurant0,8 km
Huisarts0,7 km
Ziekenhuis5,1 km
Kinderdagverblijf0,5 km
BSO0,5 km
Alle voorzieningen in Elst-Noordoost

Binnenkijken bij Regenboog 183 te Elst

Meer meldingen in deze omgeving

112 melding
Maandag 20-4-2026 om 18:50
Ochtendgloren, 6661RL Elst

112 melding
Maandag 20-4-2026 om 18:37
Ochtendgloren, 6661RL Elst

112 melding
Maandag 20-4-2026 om 11:18
Brahmsstraat, 6661BG Elst

112 melding
Maandag 20-4-2026 om 10:59
Kalmoeslaan, 6661LR Elst

112 melding
Maandag 20-4-2026 om 10:55
Basilica, 6661TV Elst

112 melding
Maandag 20-4-2026 om 09:15
Sint Maartenstraat, 6661DA Elst

112 melding
Maandag 20-4-2026 om 07:37
6661TP Elst

112 melding
Maandag 20-4-2026 om 07:37
6661TP Elst

Direct een e-mail ontvangen bij nieuwe meldingen in deze regio?

Meld je dan GRATIS aan voor de Oozo Alert service voor Elst-Noordoost

Instellen

Meer nieuws in Elst-Noordoost

Weten hoe eenvoudig het is om af te vallen? Zonder pillen en smeersels en zonder je in het zweet te werken!
Kijk op eenvoudig-afvallen.nl

© 2012 - 2026 OOZO.nl - info@oozo.nl - Gegevens verwijderen? | Disclaimer | Privacy statement