Woning Regenboog 95 Elst

Regenboog 95, 6661PM Elst

Ontvang updates voor Elst-Noordoost

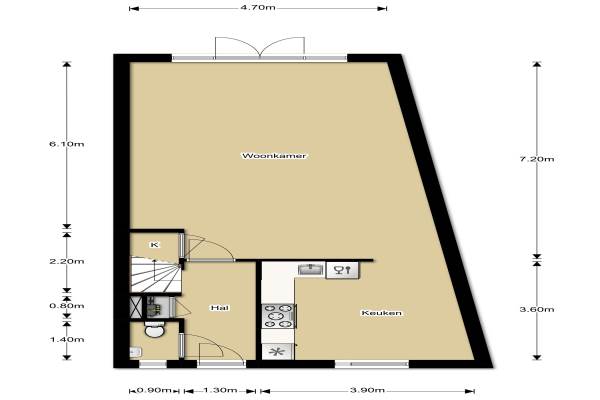
Het adres van deze woning uit 2004 is Regenboog 95 te Elst. Het pand heeft een oppervlakte van 131m² en een perceeloppervlakte van 134m² en heeft 6 kamers kamers waarvan 4 slaapkamers. De geschatte waarde van deze woning is € 269.500.

Bekijk alle woningen in Elst-Noordoost

Gegevens van Eengezinswoning, tussenwoning

Bouwjaar
2004
Geschatte waarde
€ 269.500
Oppervlakte
131 m2
Inhoud
420 m3
Aantal kamers
6 kamers
Slaapkamers
4
Badkamers
1 badkamer en 1 apart toilet
Soort bouw
Bestaande bouw
Eigendomssituatie
Volle eigendom
Ligging
Aan rustige weg en in woonwijk
Tuin
Achtertuin en voortuin
Achtertuin
55 m² (11m diep en 5m breed)

Voorzieningen in de buurt

Boodschappen1,1 km
Grote supermarkt0,7 km
Cafetaria0,5 km
Restaurant0,8 km
Huisarts0,7 km
Ziekenhuis5,1 km
Kinderdagverblijf0,5 km
BSO0,5 km
Alle voorzieningen in Elst-Noordoost

Binnenkijken bij Regenboog 95 te Elst

Meer meldingen in deze omgeving

112 melding
Zaterdag 28-3-2026 om 18:57
Ochtendgloren, 6661RL Elst

112 melding
Zaterdag 28-3-2026 om 14:44
Regenboog, 6661PL Elst

112 melding
Vrijdag 27-3-2026 om 15:40
Brahmsstraat, 6661BG Elst

112 melding
Vrijdag 27-3-2026 om 14:33
Rijksweg-Noord, 6661KD Elst

112 melding
Vrijdag 27-3-2026 om 08:35
Bizetstraat, 6661AX Elst

112 melding
Donderdag 26-3-2026 om 15:05
Dageraad, 6661RH Elst

112 melding
Donderdag 26-3-2026 om 12:02
Colosseum, 6661MA Elst

112 melding
Donderdag 26-3-2026 om 12:02
Juno, 6661JC Elst

Direct een e-mail ontvangen bij nieuwe meldingen in deze regio?

Meld je dan GRATIS aan voor de Oozo Alert service voor Elst-Noordoost

Instellen

Meer nieuws in Elst-Noordoost

Weten hoe eenvoudig het is om af te vallen? Zonder pillen en smeersels en zonder je in het zweet te werken!
Kijk op eenvoudig-afvallen.nl

© 2012 - 2026 OOZO.nl - info@oozo.nl - Gegevens verwijderen? | Disclaimer | Privacy statement