Woning Stationsstraat 18 Valburg

Stationsstraat 18, 6675AW Valburg

Ontvang updates voor Valburg

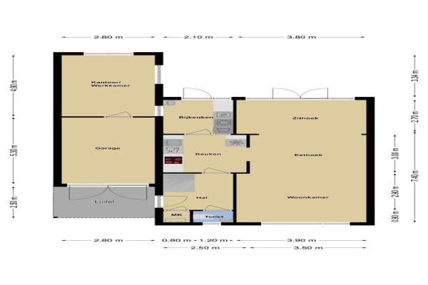
Het adres van deze woning uit 1972 is Stationsstraat 18 te Valburg. Het pand heeft een oppervlakte van 146m² en een perceeloppervlakte van 229m² en heeft 7 kamers kamers waarvan 5 slaapkamers. De geschatte waarde van deze woning is € 525.000.

Bekijk alle woningen in Valburg

Gegevens van Eengezinswoning, 2-onder-1-kapwoning

Bouwjaar
1972
Geschatte waarde
€ 525.000
Oppervlakte
146 m2
Inhoud
550 m3
Aantal kamers
7 kamers
Slaapkamers
5
Badkamers
1 badkamer en 1 apart toilet
Soort bouw
Bestaande bouw
Eigendomssituatie
Volle eigendom
Ligging
Aan rustige weg en in woonwijk
Tuin
Achtertuin en voortuin
Achtertuin
82 m² (8,50 meter diep en 9,70 meter breed)

Voorzieningen in de buurt

Boodschappen0,5 km
Grote supermarkt0,5 km
Cafetaria0,5 km
Restaurant0,5 km
Huisarts3,7 km
Ziekenhuis6,9 km
Kinderdagverblijf0,4 km
BSO0,4 km
Alle voorzieningen in Valburg

Binnenkijken bij Stationsstraat 18 te Valburg

Meer meldingen in deze omgeving

Nieuw bedrijf
November 2025
Dorpsstraat 2, 6675BB Valburg

Nieuw bedrijf
November 2025
Broekstraat 9, 6675BD Valburg

112 melding
Donderdag 13-11-2025 om 12:54
't Meulland & Molenstraat, 6675 Valburg

112 melding
Donderdag 13-11-2025 om 12:54
't Meulland & Molenstraat, 6675 Valburg

112 melding
Woensdag 12-11-2025 om 17:13
Standerd, 6675GB Valburg

112 melding
Woensdag 12-11-2025 om 16:41
Sterrenbos & Stationsstraat, 6675 Valburg

Binnenkijken bij
Dinsdag 11-11-2025
Tielsestraat 113, 6675AC Valburg

Nieuw bedrijf
November 2025
Steenspil 9, 6675GC Valburg

Direct een e-mail ontvangen bij nieuwe meldingen in deze regio?

Meld je dan GRATIS aan voor de Oozo Alert service voor Valburg

Instellen

Meer nieuws in Valburg

Weten hoe eenvoudig het is om af te vallen? Zonder pillen en smeersels en zonder je in het zweet te werken!
Kijk op eenvoudig-afvallen.nl

© 2012 - 2025 OOZO.nl - info@oozo.nl - Gegevens verwijderen? | Disclaimer | Privacy statement